EasyManua.ls Logo

Merits Pilot E603 - Specifications

Merits Pilot E603
24 pages
Print Icon
To Next Page IconTo Next Page
To Next Page IconTo Next Page
To Previous Page IconTo Previous Page
To Previous Page IconTo Previous Page
Loading...
06
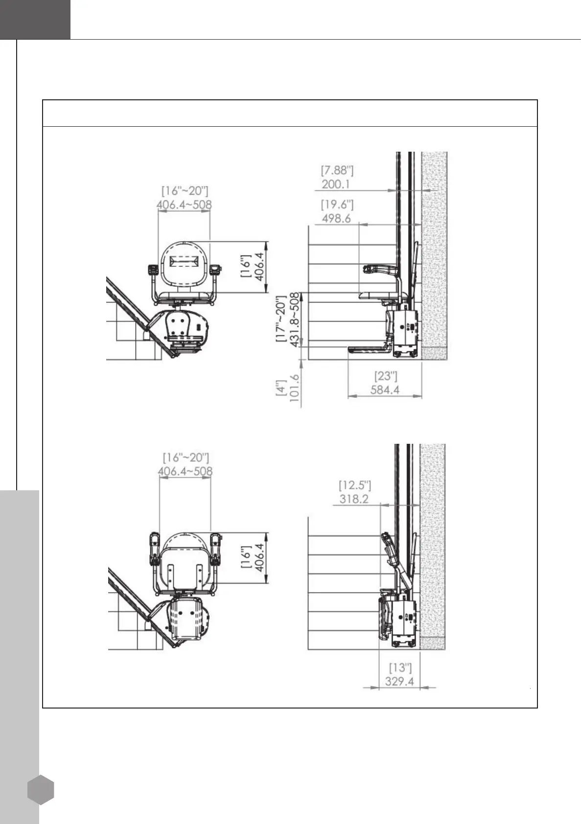
6. SPECIFICATIONS
Dimensions:
Lighting Requirements - The stairway where the lift is installed shall have a minimum
of 50 lux lighting at each landing.