EasyManua.ls Logo

MHG Heating ProCon 16 - Page 8

Default Icon
114 pages
Print Icon
To Next Page IconTo Next Page
To Next Page IconTo Next Page
To Previous Page IconTo Previous Page
To Previous Page IconTo Previous Page
Loading...
© MHG Heating Ltd
8
MHG Heating Ltd Unit 4 Epsom Downs Metro Centre, Waterfield, Tadworth, Surrey KT20 5LR
Telephone 08456 448802 Fax 08456 448803 Email info@mhgheating.co.uk
Web www.mhgheating.co.uk
010711
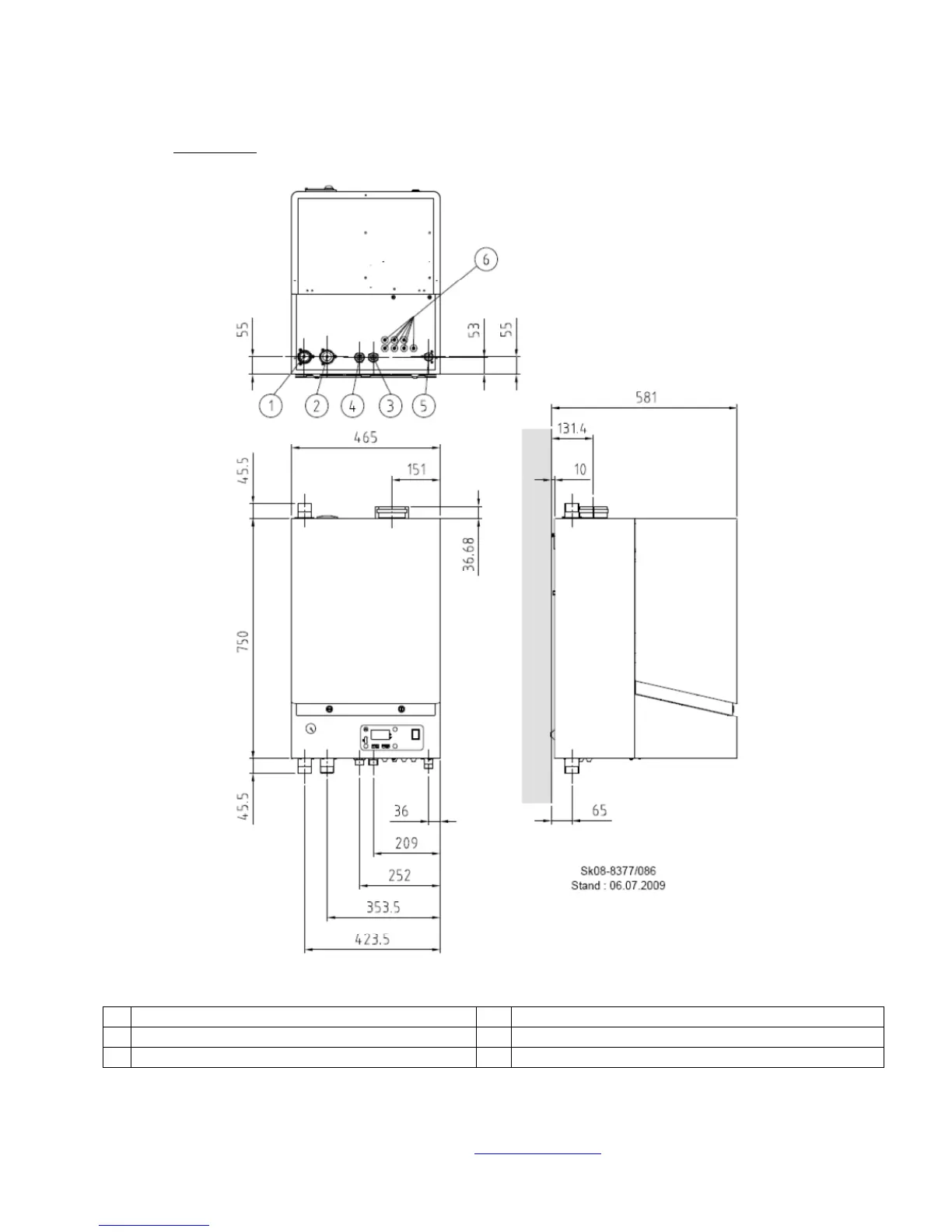
3.2 Dimensions. 77 Boiler
Legend
1 Heating Return Connection 1 ¼” 4 Condensate Cleanout Connection ¾” Cap
2 Heating Flow Connection Option 1 ¼” 5 Gas Inlet ¾”
3 Condensate Outlet ¾” BSP Plastic 6 Cable Entry Grommets
**Please note that the flexible flow connection can be rerouted to the top of the boiler if required.**

Related product manuals