EasyManua.ls Logo

Midea Aqua Tempto Power Series - Mgbt-F250 W;Rn1

Midea Aqua Tempto Power Series
213 pages
Print Icon
To Next Page IconTo Next Page
To Next Page IconTo Next Page
To Previous Page IconTo Previous Page
To Previous Page IconTo Previous Page
Loading...
MCAC-ATSM-2014-09 Aqua tempo power series tropical air-cooled scroll chiller 50Hz
41
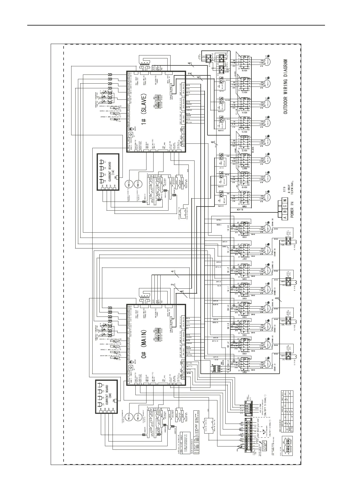
4.6 MGBT-F250W/RN1
Attached Drawing (I) Electric Drawing of Main Unit and Auxiliary Unit

Table of Contents

Related product manuals