EasyManua.ls Logo

Midea LRSJF-V120 - Page 36

Midea LRSJF-V120
87 pages
Print Icon
To Next Page IconTo Next Page
To Next Page IconTo Next Page
To Previous Page IconTo Previous Page
To Previous Page IconTo Previous Page
Loading...
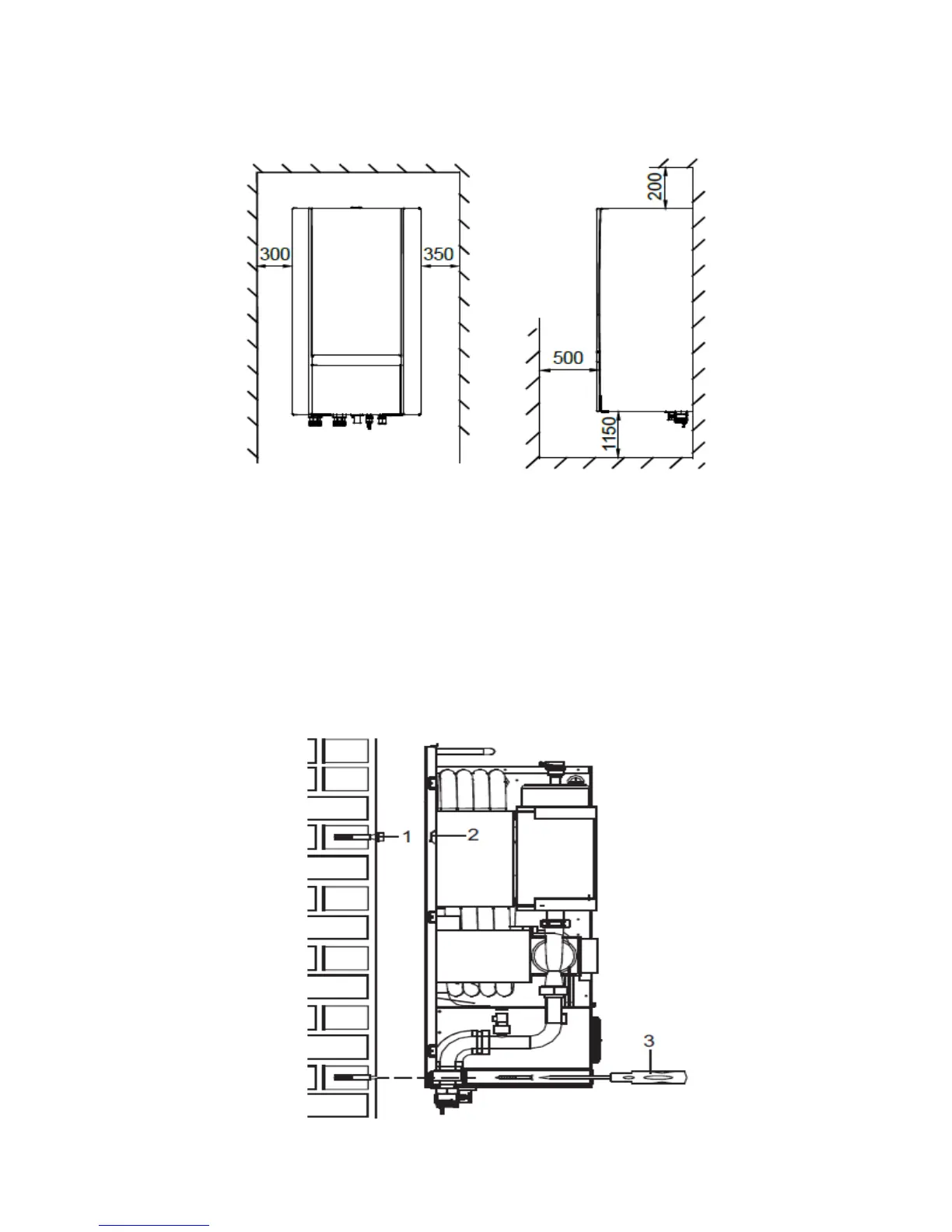
2.4 Service space
2.5 Mounting the indoor unit
Fix the wall mounting bracket to the wall using appropriate plugs and screws.
Make sure the wall mounting bracket is completely level.
When the unit is not installed level, air might get trapped in the water circuit resulting in
malfunctioning of the unit.
Pay special attention to this when installing an indoor unit to prevent overflow of the drain pan
Hang the indoor unit on the wall mounting bracket.
Fix the indoor unit at the bottom inside using appropriate plugs and screws. To do so, the unit
is equipped with 2 holes at the bottom outer edges of the frame.

Table of Contents

Related product manuals