EasyManua.ls Logo

Midea LRSJF-V120 - Page 51

Midea LRSJF-V120
87 pages
Print Icon
To Next Page IconTo Next Page
To Next Page IconTo Next Page
To Previous Page IconTo Previous Page
To Previous Page IconTo Previous Page
Loading...
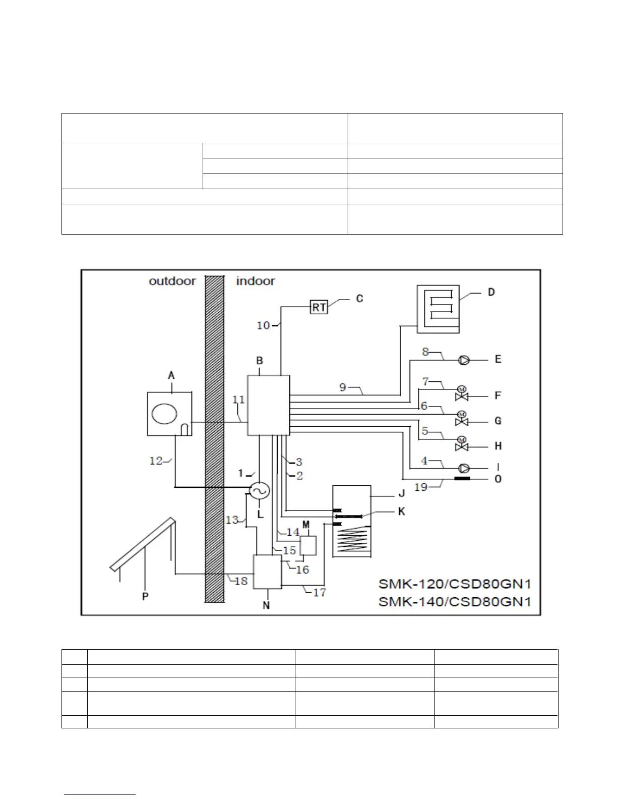
5.2 Indoor unit wiring
1) The Specification of Power
Model
SMK-120/CSD80GN1
SMK-140/CSD80GN1
Indoor Unit Power
Phase
3 Phase
Voltage and Frequency
380-415V~ 50Hz
Power Wiring (mm2)
5X4.0
Circuit Breaker (A)
32
Indoor unit/Outdoor unit Signal wire (mm2) (Weak
electric signal)
3-core shielded wire
3 X 0.5
2) Indoor unit wiring diagram
Cable specification
NO
Description
Require number of core
Section of the conductor
1
Power supply cable for indoor unit
3+GND
4 mm
2
2
Temperature sensor cable
2
3
Power supply cable from indoor unit to
Sanitary hot water tank
2
2.5 mm
2
4
Power supply cable for Pump of solar kit
2+GND
1.0 mm
2

Table of Contents

Related product manuals