EasyManua.ls Logo

Midea mcd-24hrdn1 - Dimensions

Midea mcd-24hrdn1
243 pages
Print Icon
To Next Page IconTo Next Page
To Next Page IconTo Next Page
To Previous Page IconTo Previous Page
To Previous Page IconTo Previous Page
Loading...
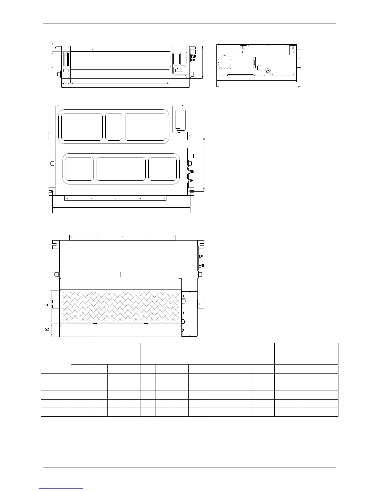
Dimensions
Duct Type 45
2. Dimensions
H
G
E
F
A
B
D
C
L
M
Capacity
(KBtu)
Outline dimension(mm) Air outlet opening size Air return opening size
Size of outline
dimension mounted
plug
A B C D E F G H I J K L M
12 700 210 635 570 65 493 35 119 595 200 80 740 350
18 920 210 635 570 65 713 35 119 815 200 80 960 350
24 920 270 635 570 65 713 35 179 815 260 20 960 350
30/36 1140 270 775 710 65 933 35 179 1035 260 20 1180 490
48/60 1200 300 865 800 80 968 40 204 1094 288 45 1240 500

Table of Contents

Related product manuals