EasyManua.ls Logo

Midea mcd-24hrdn1 - Page 94

Midea mcd-24hrdn1
243 pages
Print Icon
To Next Page IconTo Next Page
To Next Page IconTo Next Page
To Previous Page IconTo Previous Page
To Previous Page IconTo Previous Page
Loading...
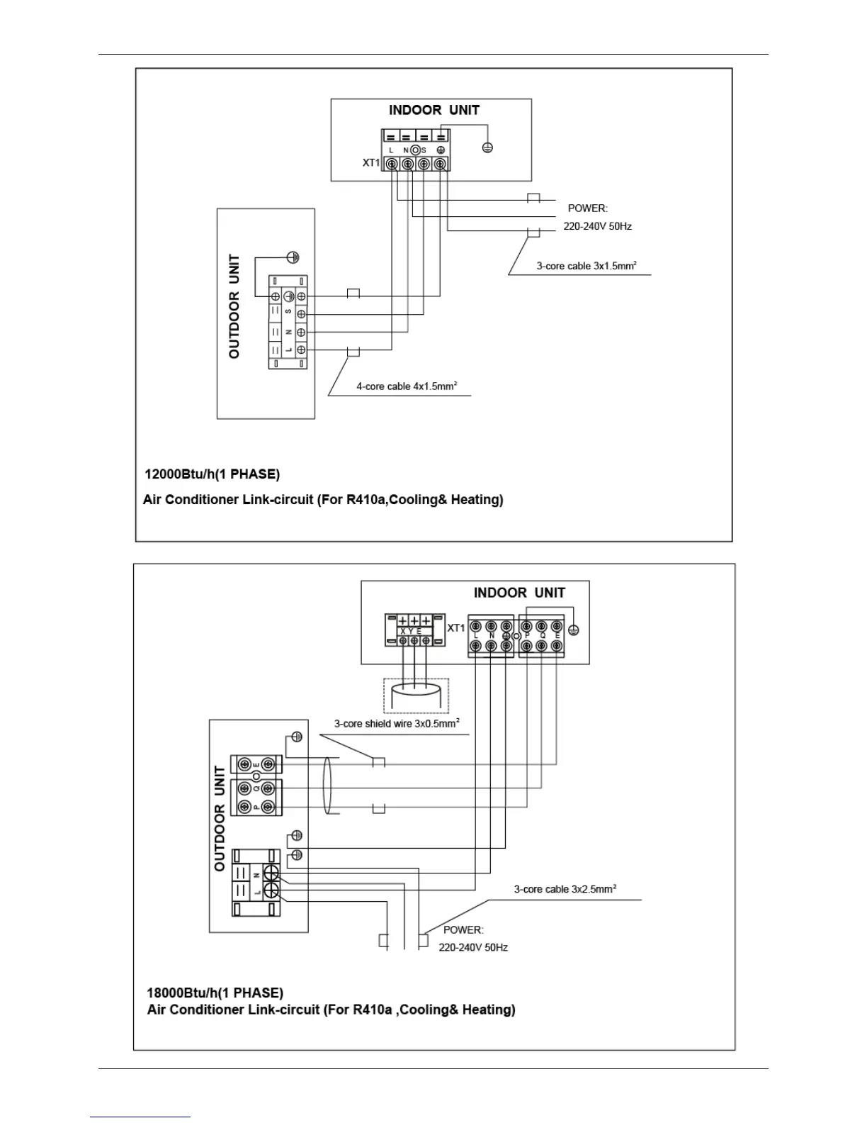
Field Wiring
84 Console Type

Table of Contents

Related product manuals