EasyManua.ls Logo

Midea MH90A3200W-ES - Installation

Midea MH90A3200W-ES
28 pages
Print Icon
To Next Page IconTo Next Page
To Next Page IconTo Next Page
To Previous Page IconTo Previous Page
To Previous Page IconTo Previous Page
Loading...
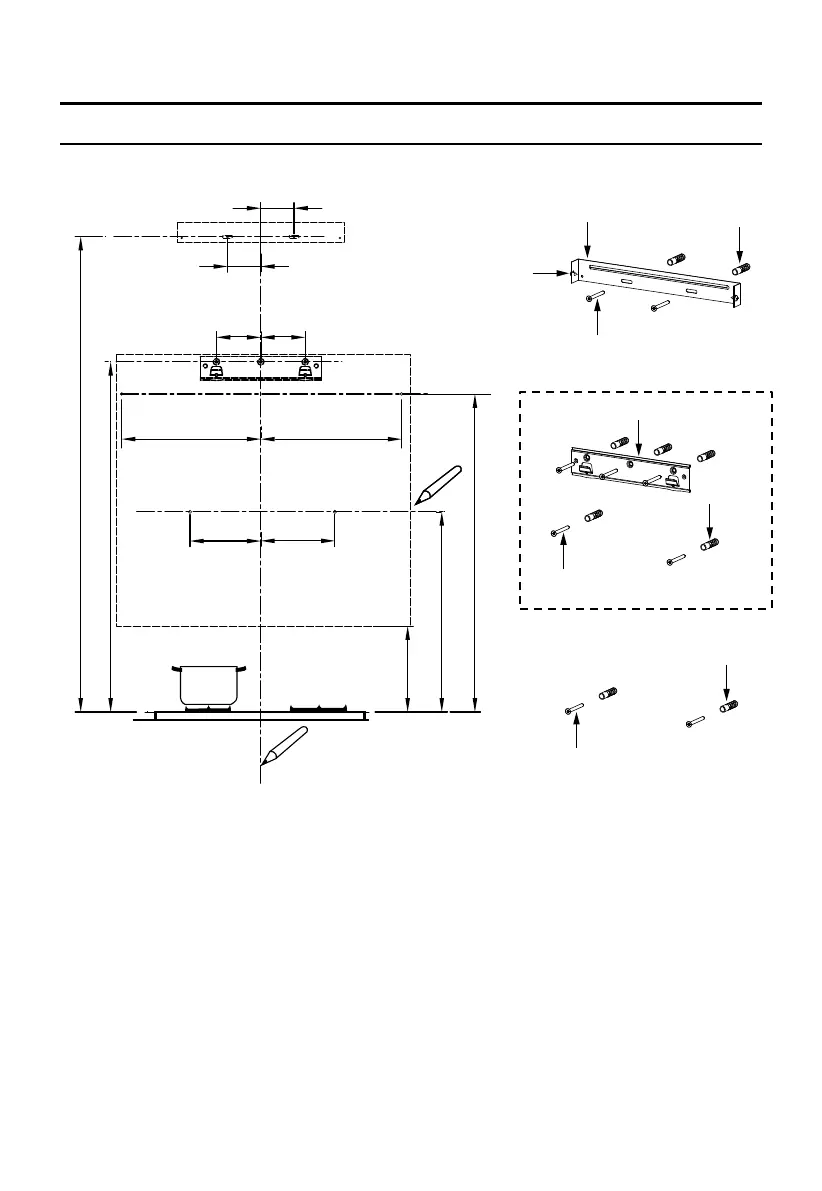
INSTALLATION
WALL DRILLING AND BRACKET FIXING
As a first step, proceed with the following drawings:
A vertical line up to the ceiling or up to the upper limit, at the center of the area in which the
hood is to be fitted.
A horizontal line A at 1270 1560 mm above the cooker top.
A horizontal line B at a minimum 887 (840 optional) mm above the cooker top.
A horizontal line C at a minimum 717 mm above the cooker top.
Mark Points:
Mark a point (1) on the horizontal line A, 40 mm to the right of the vertical reference line.
Repeat this operation on the other side, checking that the two marks are leveled.
Mark a point (2) on the horizontal line B, 80 (135 optional) mm to the right of the vertical reference
line.
Repeat this operation on the other side and on the vertical reference line
, checking that the
three marks are leveled.
40
21
A
(1)
11
40
12
80
80
B
(2)
10
B
(OPTIONAL)
20
135
135
C
(3)
11
112.5
112.5
10
Oponal
11
10
1270 - 1560
887
530
717
840
5

Related product manuals