EasyManua.ls Logo

Midea MOV-120HN1-R

Midea MOV-120HN1-R
152 pages
To Next Page IconTo Next Page
To Next Page IconTo Next Page
To Previous Page IconTo Previous Page
To Previous Page IconTo Previous Page
Loading...
MCAC-UTSM-2014-03 R410A 380~415V 3Ph 50Hz TempMaker Series Split AC
94
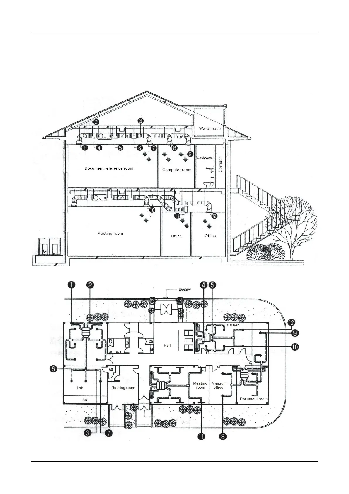
8. Duct Design Scheme
It is only available for duct type indoor unit.
Examples of construction and ventilation pipeline design scheme (Flowering hidden series.)
Construction and ventilation pipeline design scheme

Related product manuals