EasyManua.ls Logo

Midea MOV-76HN1-C

Midea MOV-76HN1-C
105 pages
To Next Page IconTo Next Page
To Next Page IconTo Next Page
To Previous Page IconTo Previous Page
To Previous Page IconTo Previous Page
Loading...
DM13-01.01.16en Air-cooled Package
Service manual 11
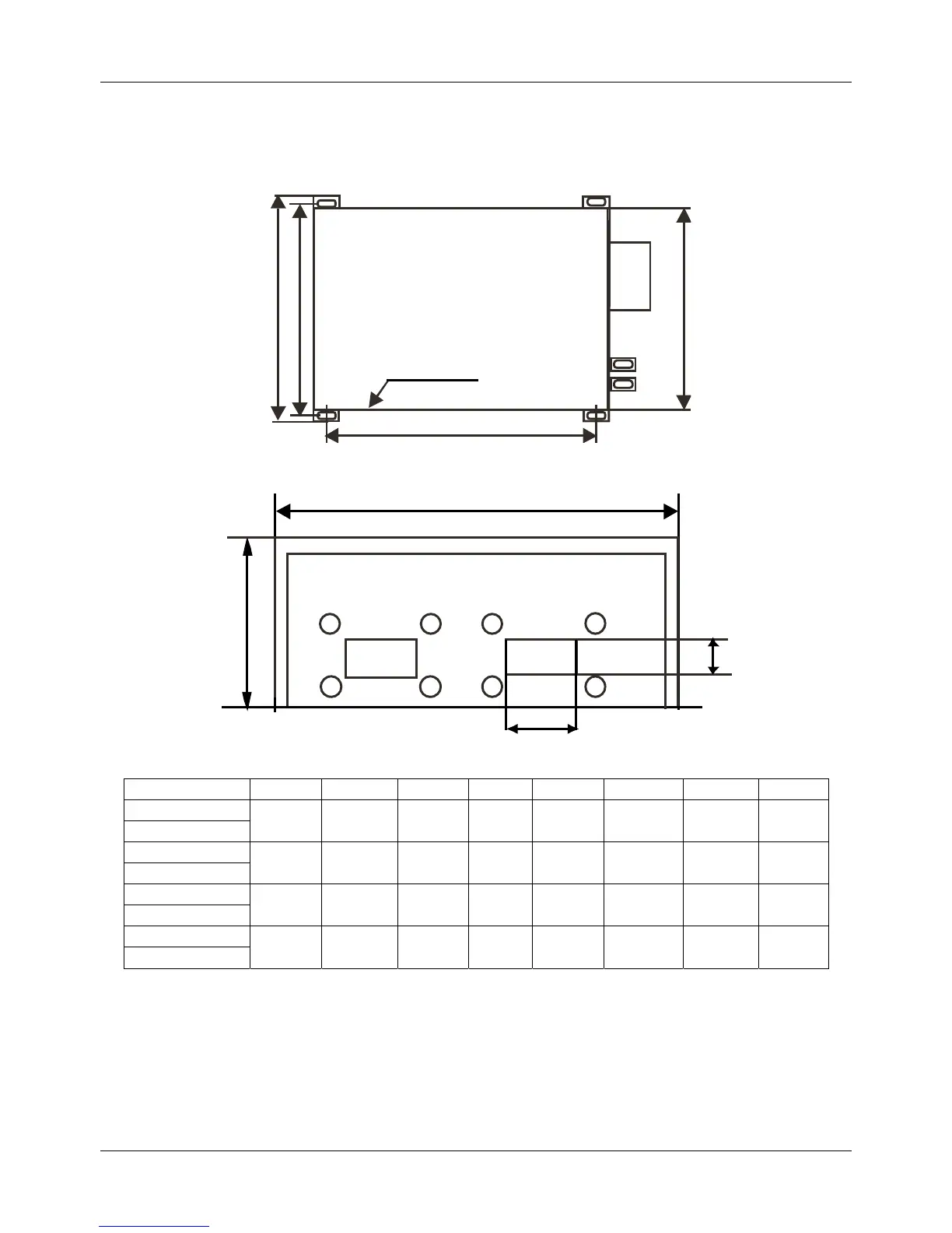
3. Dimensions
3.1 Duct type units with two air outlets
Air inlet side
C
A
B
D
W
F
H
E
Model A (mm) B (mm) C(mm) E(mm) F(mm) W (mm) H (mm) D (mm)
MTA-76CRN1
840 800 1180 300 165 1350 450 760
MTA-76HRN1
MTA-96CRN1
840 800 1180 300 165 1350 450 760
MTA-96HRN1
MHB-76CRN1
840 800 1180 300 165 1350 450 760
MHB-76HRN1
MHB-96CRN1
840 800 1180 300 165 1350 450 760
MTA-96HRN1

Other manuals for Midea MOV-76HN1-C

Related product manuals