EasyManua.ls Logo

Midea MOV-76HN1-C

Midea MOV-76HN1-C
105 pages
To Next Page IconTo Next Page
To Next Page IconTo Next Page
To Previous Page IconTo Previous Page
To Previous Page IconTo Previous Page
Loading...
DM13-01.01.16en Air-cooled Package
Service manual 61
2. Installation of Indoor Units
2.1 Installation of Duct
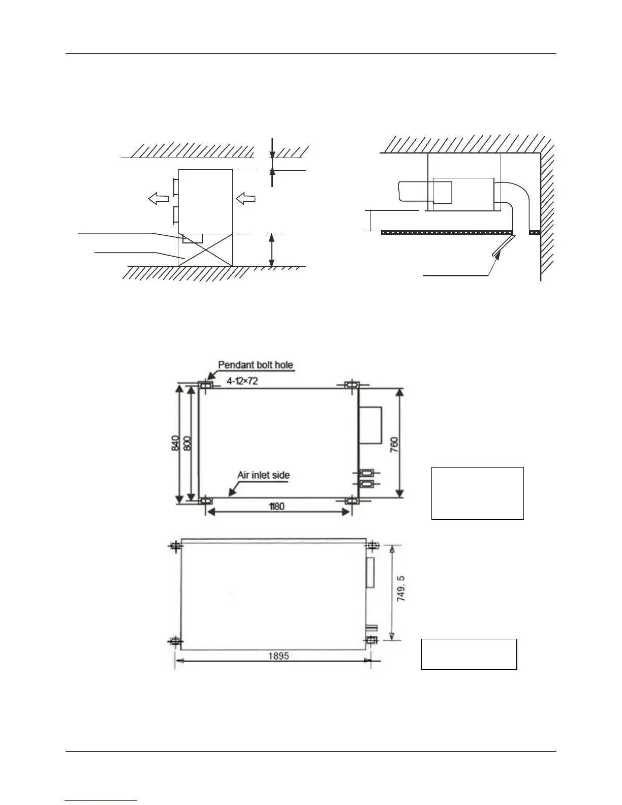
2.1.1 Installation Space
Ensure enough space required for installation and maintenance. (Fig-1 and Fig-2)
Electric control box
Inspection hole
6
0
0
m
m
5
0
0
m
m
Inspection hole
H
Fig-1 Fig -2
2.1.2 Install Φ10 Pendant Bolts Or Ground Bolts (Fig-3)
Fig-3
1. Use f10 or bigger screws. The screw material is high-quality carbon steel (whose surface is zinc plated or
undergoes other rustproof treatment) or stainless steel.
2. The treatment of the ceiling varies between buildings. For detailed measures, consult with the fitting-out
staff.
MTA-120C(H)RN1
MTA-150C
(
H
)
RN1
MTA-76C(H)RN1
MTA-96C(H)RN1
MHB-76C(H)RN1
MHB-96C
(
H
)
RN1

Other manuals for Midea MOV-76HN1-C

Related product manuals