EasyManua.ls Logo

Midea MUE-60HRFN1-MW - Outdoor Unit Diagrams

Midea MUE-60HRFN1-MW
247 pages
To Next Page IconTo Next Page
To Next Page IconTo Next Page
To Previous Page IconTo Previous Page
To Previous Page IconTo Previous Page
Loading...
73
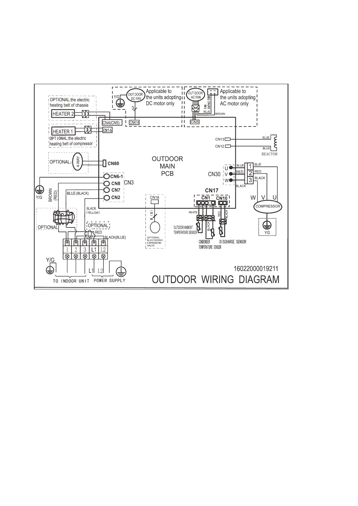
6.2 Outdoor Unit
MOB30-09HFN1-MX0W, MOB01-09HFN1-MW0W, MOB30-12HFN1-MV0W, MOB01-12HFN1-MV0W,
MOCA30-18HFN1-MT0W, MOCA01-18HFN1-MT0W, MOCA31-18HFN1-MT0W,
MOD31-24HFN1-MT0W

Table of Contents

Related product manuals