EasyManua.ls Logo

Midea One-way Cassette Series - Four-Way Cassette Wiring Diagrams

Midea One-way Cassette Series
105 pages
Print Icon
To Next Page IconTo Next Page
To Next Page IconTo Next Page
To Previous Page IconTo Previous Page
To Previous Page IconTo Previous Page
Loading...
Four-way Cassette MCAC-VTSM-2017-01
65
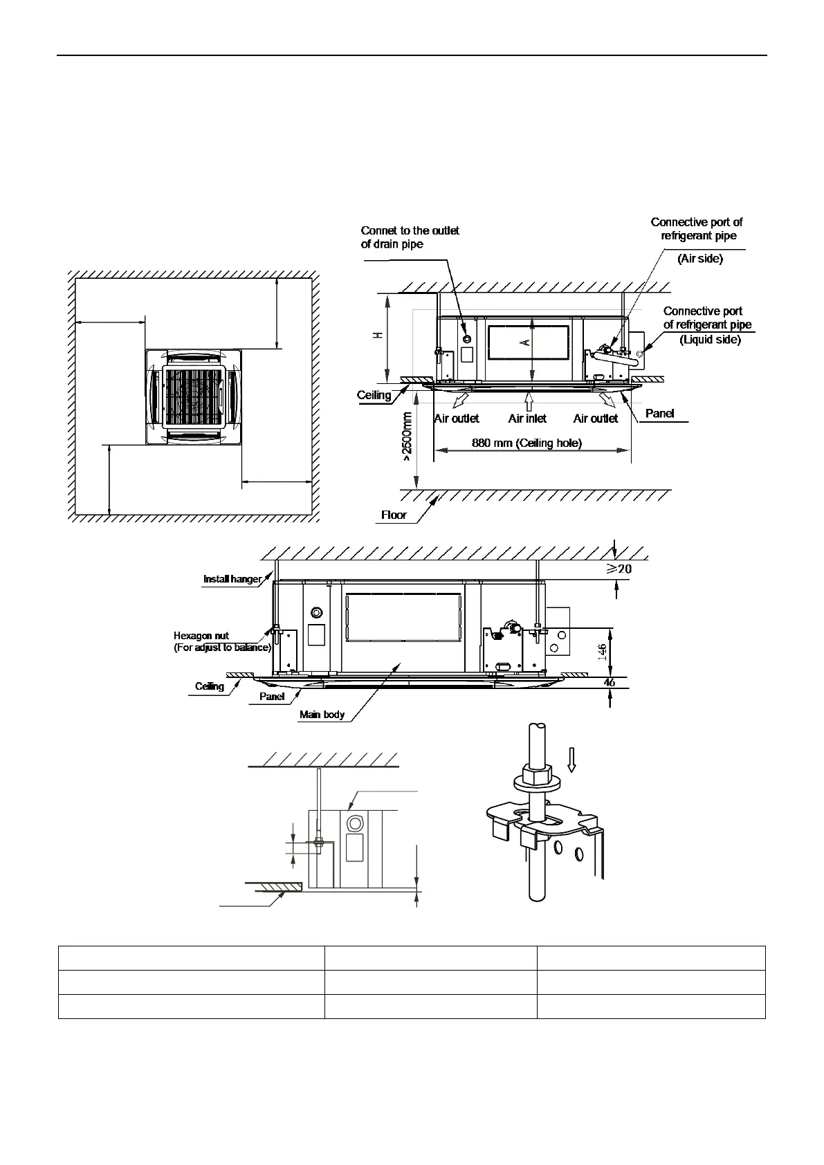
4. Service Spaces
1) There is enough room for installation and maintenance.
2) The ceiling is horizontal, and its structure can endure the weight of the indoor unit.
3) The outlet and the inlet are not impeded, and the influence of external air is the least.
4) The air flow can reach throughout the room.
5) The connecting pipe and drainpipe could be extracted out easily.
6) There is no direct radiation from heaters.
Indoor unit
A(mm)
H(mm)
MDV-D28Q4/N1-D MDV-D80Q4/N1-D
230
≥260
MDV-D90Q4/N1-D MDV-D140Q4/N1-D
300
≥330
>1000mm
>1000mm
>1000mm
>1000mm
L
10~12mm
Main body of the unit
Ceiling

Related product manuals