EasyManua.ls Logo

Miele DGD 6635 - Installation Notes and Dimensions

Miele DGD 6635
104 pages
Print Icon
To Next Page IconTo Next Page
To Next Page IconTo Next Page
To Previous Page IconTo Previous Page
To Previous Page IconTo Previous Page
Loading...
Installation notes
91
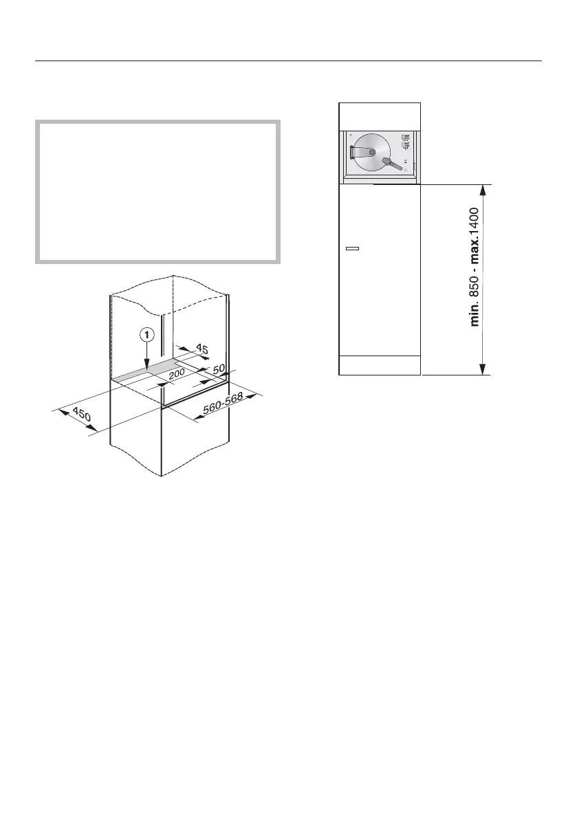
Creating a cut-out for the wa‐
ter inlet and drain hoses
A cut-out is required in the tall hous‐
ing unit for feeding the water inlet
and drain hoses through. This is to
ensure adequate space for any
movement in the hoses during oper‐
ation and to prevent the risk of dam‐
age to the hoses and any subse‐
quent water damage.
a
Cut-out in housing unit for feeding
water inlet and drain hoses through
Create a cut-out in the housing
unit for the water inlet and drain ho‐
ses (see diagram for dimensions).
Installation height
Please observe the dimensions
shown in the diagram.

Table of Contents

Related product manuals