EasyManua.ls Logo

Miele KM 6325 - Page 55

Miele KM 6325
64 pages
Print Icon
To Next Page IconTo Next Page
To Next Page IconTo Next Page
To Previous Page IconTo Previous Page
To Previous Page IconTo Previous Page
Loading...
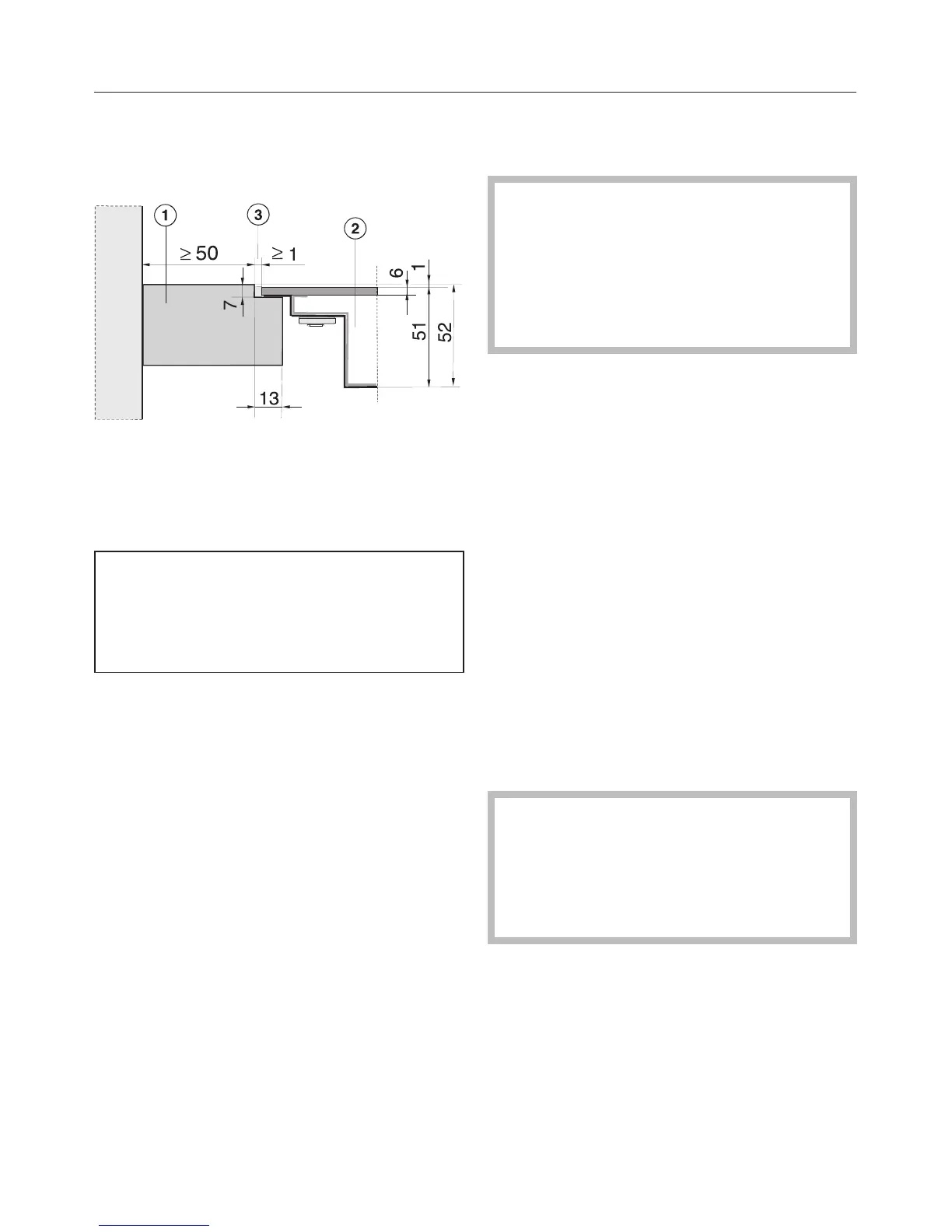
Granite and marble worktops
Preparing the worktop
a Worktop
b Hob
c Gap
As the ceramic glass and the
worktop cut-out have a certain
dimensional tolerance, the size of
gap c can vary (min. 1 mm).
^ Make the worktop cut-out as shown
in "Building-in dimensions".
Observe the safety distances (see
"Safety instructions for installation").
Connecting the mains cable to the
appliance
The mains cable must only be
connected to the appliance by a
qualified and competent electrician
in strict accordance with current
local and national safety regulations
(BS 7671 in the UK).
^
Follow the instructions in the wiring
diagram (see "Electrical connection -
Wiring diagram").
Installing the hob
^ Feed the mains connection cable
down through the cut-out.
^ Centre the hob b in the cut-out.
^ Connect the hob to the mains.
^ Check that the hob works.
^ Seal the remaining gap c with a
silicone sealant that is heat-resistant
to at least 160 °C.
For granite and marble worktops,
only use silicone sealant that is
especially formulated for granite and
marble, and observe the sealant
manufacturer's instructions.
Flush-fitted hobs
55

Related product manuals