EasyManua.ls Logo

Mircom FleXNet FX-4000 - Page 20

Mircom FleXNet FX-4000
154 pages
Print Icon
To Next Page IconTo Next Page
To Next Page IconTo Next Page
To Previous Page IconTo Previous Page
To Previous Page IconTo Previous Page
Loading...
17
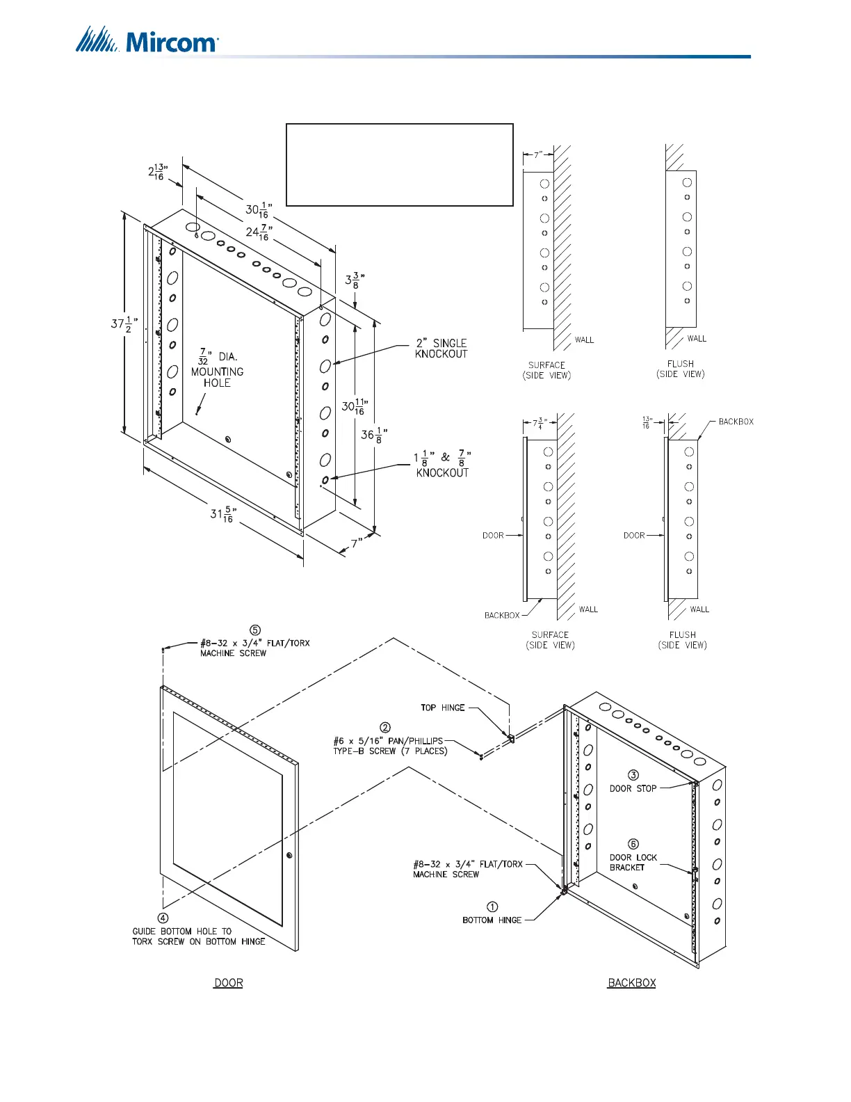
Figure 3 BB-5008 Enclosure Installation Instructions and Dimensions
Backbox
BB-5008 Backbox
DOX-5008M Metal Door
Backbox with DOX-5008M Door
Material: Cold rolled steel
16GA (0.059”) thick for backbox
14GA (0.075”) thick for door
Finish: Painted except for hinges

Table of Contents

Other manuals for Mircom FleXNet FX-4000