EasyManua.ls Logo

Mitsubishi Electric melsec q00ujcpu - Page 408

Mitsubishi Electric melsec q00ujcpu
622 pages
To Next Page IconTo Next Page
To Next Page IconTo Next Page
To Previous Page IconTo Previous Page
To Previous Page IconTo Previous Page
Loading...
CHAPTER9 DEVICES
9
2
3
4
5
6
7
8
9.7 File Register (R)
9.7.6 Precautions for using the file register
9 - 63
(c) File register size checking procedure
Check the file register size used for each sequence program.
Check the total file register size set in SD647 on the sequence program to see if there are sufficient
number of points to be used or not.
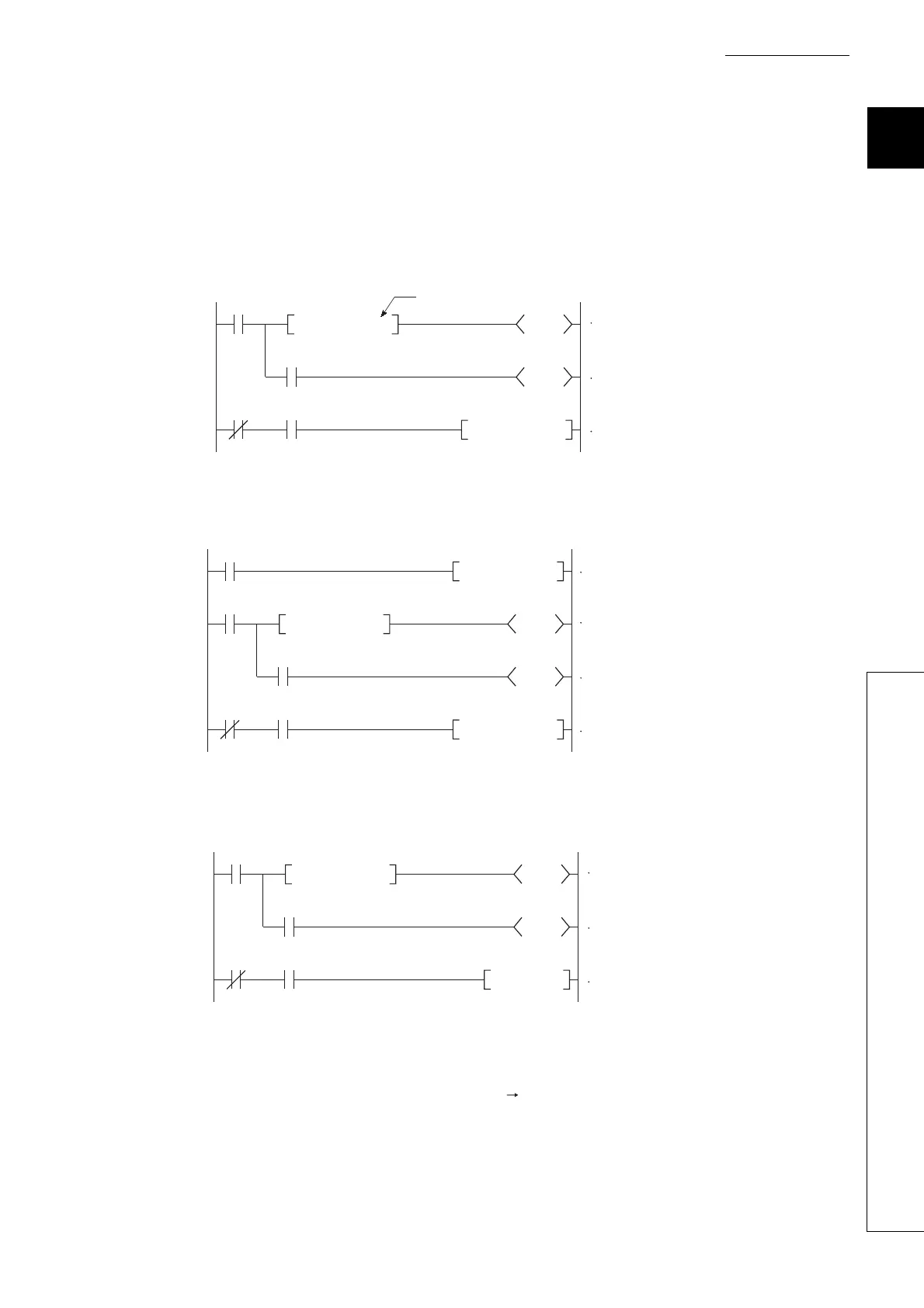
[Program example 1]
The file register range of use is checked at the beginning of each program.
[Program example 2]
The file register range of use is checked after execution of the QDRSET instruction.
[Program example 3]
When a block is switched to another:
(3) Deleting a file register file
To delete an unnecessary file register file, select [Online] [Delete PLC data] in GX Developer.
Figure 9.77 Program examples of file register checking
SM400
M0
Y0
M0
Transfer command
M0
MOVP K4X20 R0
<
SD647 K4
4K points specified
Final file register
range check
Writing to file
register
Alarm processing
SM400
M0
Y0
M0
Transfer command
M0
MOVP K4X20 R0
<
SD647 K4
QDRSET
"1:ABCD"
Final file register
range check
Changing file register to
ABCD of Drive 1
Writing to file
register
Alarm processing
SM400
M0
Y0
M0
Block switching
command
M0
RSET
K1
<
SD647 K33
Final file register
range check
Alarm processing
Switching to block 1

Table of Contents

Related product manuals