EasyManua.ls Logo

Mitsubishi Electric melsec q00ujcpu - Page 92

Mitsubishi Electric melsec q00ujcpu
622 pages
To Next Page IconTo Next Page
To Next Page IconTo Next Page
To Previous Page IconTo Previous Page
To Previous Page IconTo Previous Page
Loading...
CHAPTER3 CPU MODULE OPERATION
1
2
3
4
5
6
7
8
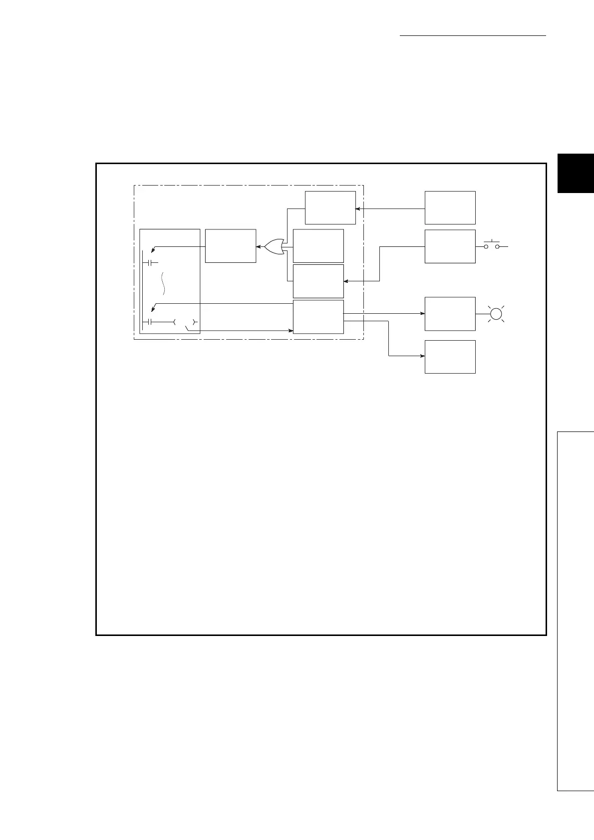
3.8 I/O Processing and Response Delay
3.8.1 Refresh mode
3 - 10
(3) Output
The operation results of the sequence program is output to the output (Y) device memory in the CPU
module every time program operation is performed. Then, the CPU module batch-outputs the on/off
data in the output (Y) device memory to an output module before the start of sequence program
operations.
Input refresh:
Before the start of sequence program operations, the CPU module batch-reads input data (1)) from
an input module, performs a logical OR operation with data in the GX Developer input area or data
in the remote input refresh area, and then stores the result in the input (X) device memory.
Output refresh:
Before the start of sequence program operations, the CPU module batch-outputs data in the output
(Y) device memory (2)) to the output module.
When a contact instruction for input is executed:
The CPU module reads input data (3)) from the input (X) device memory and executes a sequence
program.
When a contact instruction for output is executed:
The CPU module reads output data (4)) from the output (Y) device memory and executes a
sequence program.
When the OUT instruction for output is executed:
The CPU module stores the operation result of the sequence program (5)) in the output (Y) device
memory.
Figure 3.3 I/O data flow in refresh mode
CPU module
CPU (operation
processing area)
3)
4)
*3
5)
X0
Y22
Input (X)
device
memory
Input module
access area
Output (Y)
device
memory
Input
refresh
Network
module
Network
module
Input
module
1)
Output
refresh
2)
Remote
input refresh
area
*1
GX Developer
input area
*2
Y20
Output
module

Table of Contents

Related product manuals