EasyManua.ls Logo

Mitsubishi Electric QY40P - QX71 DC Input Module (Positive;Negative Shared Common Type)

Mitsubishi Electric QY40P
158 pages
To Next Page IconTo Next Page
To Next Page IconTo Next Page
To Previous Page IconTo Previous Page
To Previous Page IconTo Previous Page
Loading...
2 - 21 2 - 21
MELSEC-Q
2 INPUT MODULE SPECIFICATIONS
2.16 QX71 DC Input Module (Positive/Negative Shared Common Type)
Type
Specifications
DC input module (Positive/negative shared common type)
QX71 Appearance
Number of input points 32 points
Isolation method Photocoupler
Rated input voltage
5VDC
(+20/-10%, ripple ratio within 5%)
12VDC
(+20/-15%, ripple ratio within 5%)
Rated input current Approx. 1.2mA Approx. 3.3mA
Input derating None
ON voltage/ON current 3.5V or higher/1mA or higher
OFF voltage/OFF current 1V or lower/0.1mA or lower
Input resistance Approx. 3.3k
Response
time
OFF to ON
1ms/5ms/10ms/20ms/70ms or less (configured in PLC parameter)
1
(Default: 10ms)
ON to OFF
1ms/5ms/10ms/20ms/70ms or less (configured in PLC parameter)
1
(Default: 10ms)
Dielectric withstand voltage 560VAC rms/3 cycles (altitude 2000m)
Insulation resistance 10M or more by insulation resistance tester
Noise immunity
By noise simulator of 500Vp-p noise voltage,
1 s noise width and 25 to 60Hz noise frequency
First transient noise IEC61000-4-4: 1kV
Protection degree IP2X
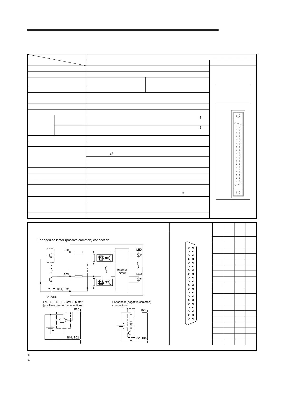
Common terminal arrangement 32 points/common (common terminal: B01, B02)
Number of occupied I/O points 32 points (I/O assignment is set as a 32-point input module.)
Operation indicator ON indication (LED)
External connections 40-pin connector
Applicable wire size
0.088 to 0.3mm
2
(For A6CON1 or A6CON4) 2
Applicable connector A6CON1, A6CON2, A6CON3, A6CON4 (optional)
Internal current consumption
(5VDC)
70mA (TYP, all points ON)
Weight 0.12kg
External connection Pin-Outs
Pin
No.
Signal
No.
Pin
No.
Signal
No.
Module front view
B20 X00 A20 X10
B19 X01 A19 X11
B18 X02 A18 X12
B17 X03 A17 X13
B16 X04 A16 X14
B15 X05 A15 X15
B14 X06 A14 X16
B13 X07 A13 X17
B12 X08 A12 X18
B11 X09 A11 X19
B10 X0A A10 X1A
B09 X0B A09 X1B
B08 X0C A08 X1C
B07 X0D A07 X1D
B06 X0E A06 X1E
B05 X0F A05 X1F
B04 Vacant A04 Vacant
B03 Vacant A03 Vacant
B02 COM A02 Vacant
B01 COM A01 Vacant
1
: For the setting method, refer to Section 1.3.1.
2
: When using A6CON2 or A6CON3, refer to Chapter 7.
QX71
5/12VDC
1.2 / 3.3mA
QX71
01234567
89ABCDEF
01234567
89ABCDEF
A20
A19
A18
A17
A16
A15
A14
A13
A12
A11
A10
A9
A8
A7
A6
A5
A4
A3
A2
A1
B20
B19
B18
B17
B16
B15
B14
B13
B12
B11
B10
B9
B8
B7
B6
B5
B4
B3
B2
B1

Table of Contents

Related product manuals