EasyManua.ls Logo

Mitsubishi A1SD75M3 - Page 257

Mitsubishi A1SD75M3
746 pages
To Next Page IconTo Next Page
To Next Page IconTo Next Page
To Previous Page IconTo Previous Page
To Previous Page IconTo Previous Page
Loading...
5 - 167
MELSEC-A
5 DATA USED FOR POSITIONING CONTROL
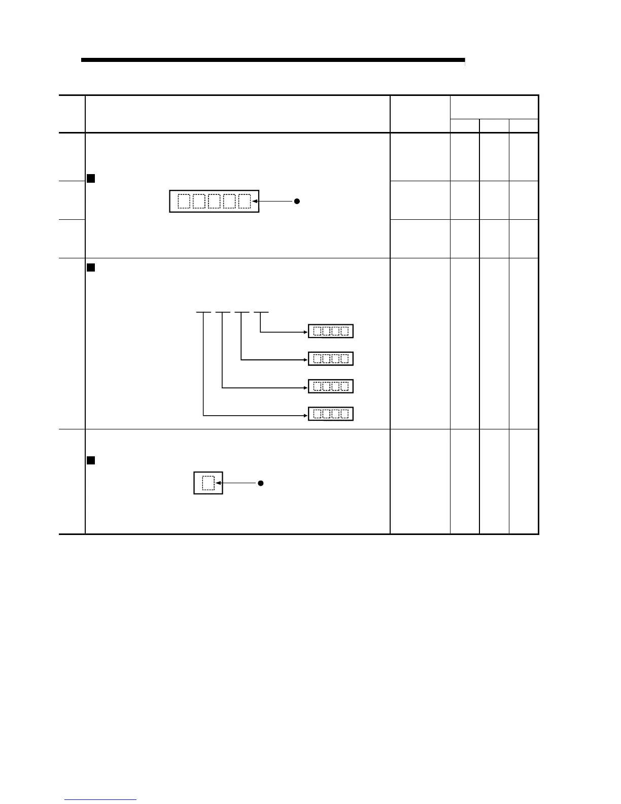
Storage buffer
memory address
Reading the monitor value Default value
Axis 1 Axis 2 Axis 3
0 876 976 1076
0 877 977 1077
Monitoring is carried out with a decimal.
Storage value (%)
Monitor value
0 878 978 1078
Monitoring is carried out with a hexadecimal.
<Address>
<Reference>
Buffer memory status at the access count of 9,000,000,000 times
9,000,000,000 = (0000 0002 1871 1A00)
16
b15 b0
880
100A
b31 b16
881
1718
b47 b32
882
00
2
0
b63 b48
883
0000
0
880
to
883
980
to
983
1080
to
1083
Monitoring is carried out with a decimal.
Monitor value
Storage value
0: Standard mode
1: Infinite length mode
0 879 979 1079

Related product manuals