EasyManua.ls Logo

Mitsubishi MR-J4-60A - Page 311

Mitsubishi MR-J4-60A
640 pages
Print Icon
To Next Page IconTo Next Page
To Next Page IconTo Next Page
To Previous Page IconTo Previous Page
To Previous Page IconTo Previous Page
Loading...
9 OUTLINE DRAWINGS
9 - 12
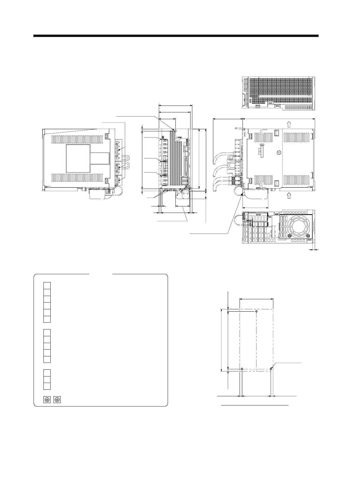
(b) MR-J4-200A4(-RJ)
[Unit: mm]
6
6
6 78 6
168
6
156
45
90
85
195
161
6
CNP2
CNP1
CNP3
PE
Exhaust
Cooling fan
intake
Approx.
69.3
With
MR-BAT6V1SET
Approx. 21
Lock knob
φ6 mounting hole
Approx. 38.5
Approx. 80
Mass: 2.1 [kg]
L2
N-
P3
L11
L21
P4
L3
L1
C
D
P+
PE
Terminal
CNP1
CNP2
V
W
U
CNP3
Screw size: M4
Tightening torque: 1.2 [N•m]
Mounting screw
Screw size: M5
Tightening torque: 3.24 [N•m]
3-M5 screw
156 ± 0.5
78 ± 0.3
Mounting hole process drawing
Approx.
6
Approx.
6
Approx. 6 Approx. 6
Approx. 168
Approx. 90

Table of Contents

Related product manuals