EasyManua.ls Logo

Mitsubishi Q00CPU - Page 70

Mitsubishi Q00CPU
692 pages
Print Icon
To Next Page IconTo Next Page
To Next Page IconTo Next Page
To Previous Page IconTo Previous Page
To Previous Page IconTo Previous Page
Loading...
3
- 5
3.1 Sequence Program
3
SEQUENCE PROGRAM CONFIGURATION AND
EXECUTION CONDITIONS
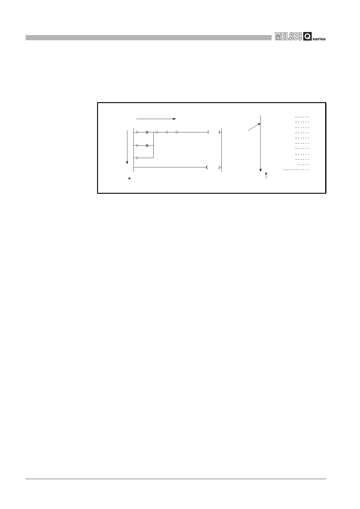
(2) Sequence program operation
Program operation is executed sequentially from Step 0 to the END/FEND instruction.
In the ladder mode, operation is performed from the left side vertical bus bar to the
right end for each ladder block, and from the top rung to the bottom.
Diagram 3.5 Comparison between ladder and list modes
X0 X1 X5 X6 X7
X2
X3
X4
0
10
[Ladder mode]
From left to right
From top
to bottom
1) to 11) indicate operation order of
sequence program.
[List mode]
Program is
executed from
Step 0 to END
instruction in
due order.
Step number
0 LD X0 1)
1 AND X1 2)
2 LD X2 3)
3 AND X3 4)
4 ORB 5)
5 OR X4 6)
6 AND X5 7)
7 AND X6 8)
8 AND X7 9)
9 OUT Y10 10)
10 END 11)
1) 2)
3)
6)
4)
5)
7) 8) 9)
10)
11)
END
Y10

Table of Contents

Other manuals for Mitsubishi Q00CPU

Related product manuals