EasyManua.ls Logo

MK Products Cobramatic Pro Series - 003-2451 Power Block Assembly, MK Connection

Default Icon
40 pages
Print Icon
To Next Page IconTo Next Page
To Next Page IconTo Next Page
To Previous Page IconTo Previous Page
To Previous Page IconTo Previous Page
Loading...
Cobramatic
®
Pro Series Owner’s Manual - Page 19
Cobramatic
®
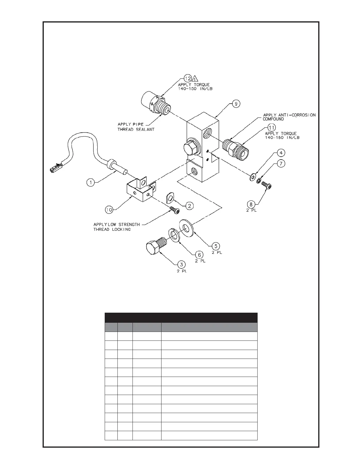
Pro Series Power Block Assembly
MK Products Connection
P/N 003-2451
Power Block Assy
No.
Qty.
Part No.
Description
1
1
003-1243
Assy Sensor Posa-Start
2 1 313-0021
Stud Receiver
3
2
329-0054
Screw Hex 3/8 -16 x 5/8
4
1
331-0002
Washer Flat #6 ST
5 2 331-0777
Washer Flat 0.391 ID x 0.875 OD
6 2 333-0011
Washer Spr LK 3/8
7
1
333-0252
Washer LK Star-In ST #6
8
2
336-0005
Screw Pnhd PH 6-32 x .375 ST
9 1 431-1970
Power Block Cabinet
10 1 435-1247
Bracket Current Sensor
11
1
753-0112
Fitting 1/4 NPT Male to 5/8-18 M
12
1
753-0475
Adapter 1/4 NPT M to 5/8-18 F L/H