EasyManua.ls Logo

Mobius M210 - Voltage Configuration

Mobius M210
22 pages
Print Icon
To Next Page IconTo Next Page
To Next Page IconTo Next Page
To Previous Page IconTo Previous Page
To Previous Page IconTo Previous Page
Loading...
MOBIUS MILL M210 USER GUIDE
12
VOLTAGE CONFIGURATION
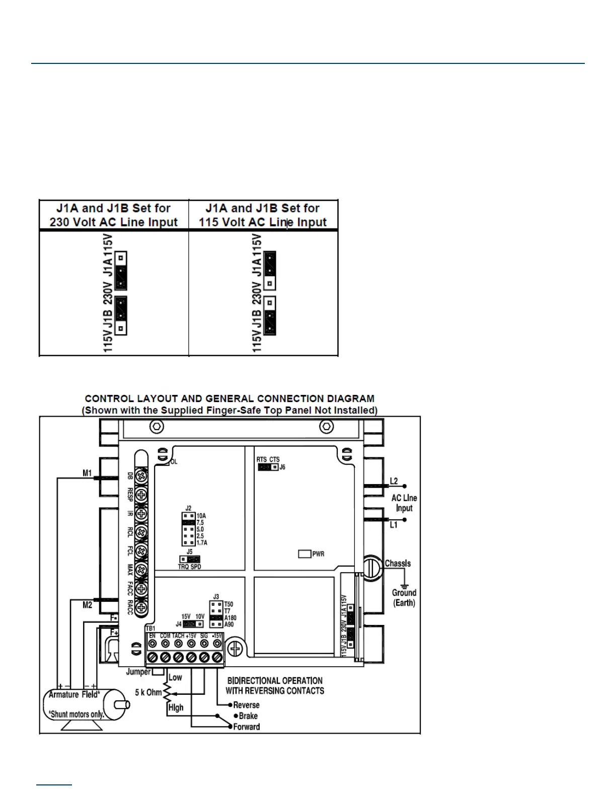
The input voltage must be congured/veried on the KBMG DC Motor Drive – Model KBMG-212D.
This is done by setting the selectable jumpers for the appropriate voltage.
J1A AND J1B (AC LINE INPUT VOLTAGE): Be sure J1A and J1B are set to the actual AC Line input voltage
applied to the control.
See illustration below: