EasyManua.ls Logo

Monaco Monarch 2000 - Page 49

Default Icon
123 pages
Print Icon
To Next Page IconTo Next Page
To Next Page IconTo Next Page
To Previous Page IconTo Previous Page
To Previous Page IconTo Previous Page
Loading...
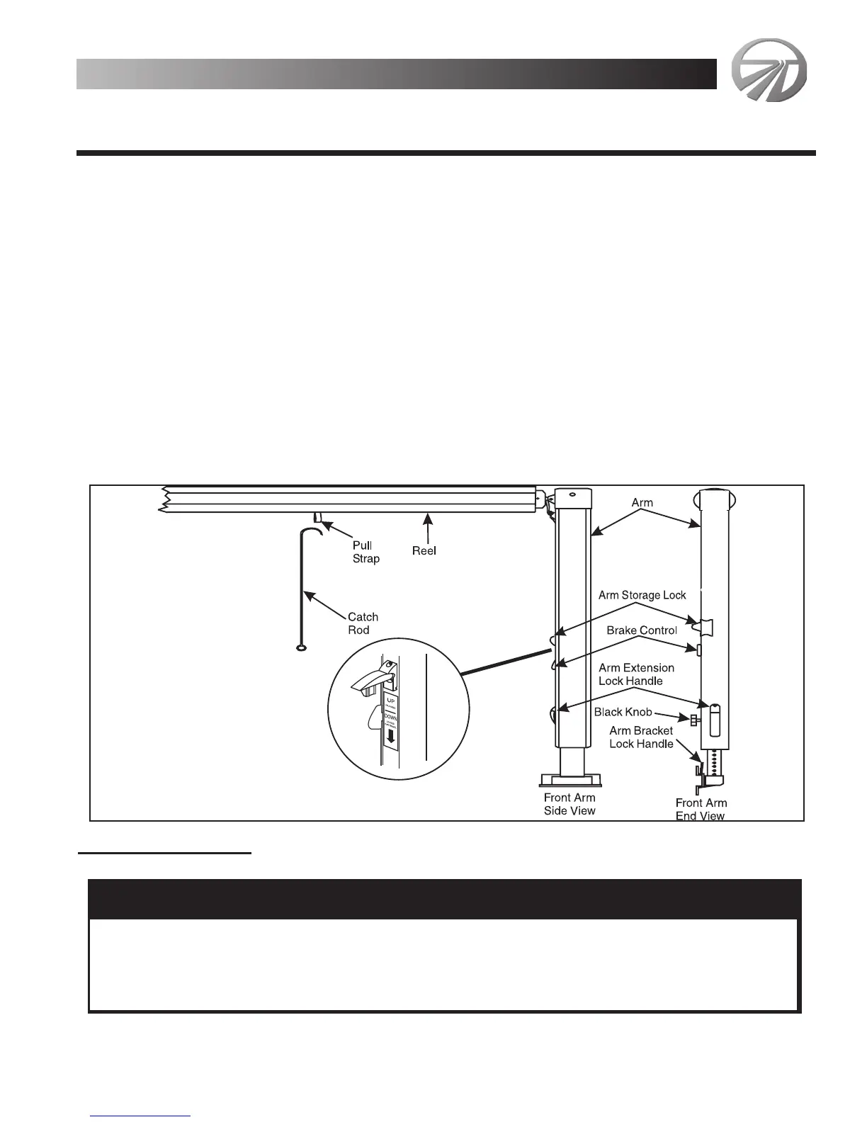
front and rear arms, all the way up to unlocked position.
Slide brake control, center handle located on front arm only, all the way up to
unlocked position; red warning will be visible at top of arm.
Hook loop of pull strap, located in center of reel, with catch rod and draw awning,
reel assembly and arms all the way out away from motorhome.
Hold awning out and have someone push both front and rear braces attached to
black knobs, all the way out to reel end of arms and lock braces in place.
Tighten black locking knobs. Braces that are left in down position, or not locked
to reel end of arms, will allow awning to retract inadvertently.
Slide center pull strap to one end of awning and store.
Raise arm extension lock handles, located on bottom of front and rear arms, all
the way up to unlock position. Extend arms up to position awning at desired
height, and lower lock handles to secure arms.
To Retract Awning
Monarch 3-17
Appliances & Equipment
Appliances & Equipment
MONACO
2000
!
CAUTION !
The awning is under extreme spring tension when extended. If the pull
strap is released quickly, or let go completely, the awning will abruptly roll up to
the stored position and can cause bodily injury or damage to awning.

Related product manuals