EasyManua.ls Logo

Motorola XTS 2500

Motorola XTS 2500
914 pages
To Next Page IconTo Next Page
To Next Page IconTo Next Page
To Previous Page IconTo Previous Page
To Previous Page IconTo Previous Page
Loading...
9.2-26 UHF1 Schematics, Board Overlays, and Parts Lists
February 14, 2012 6816985H01-F
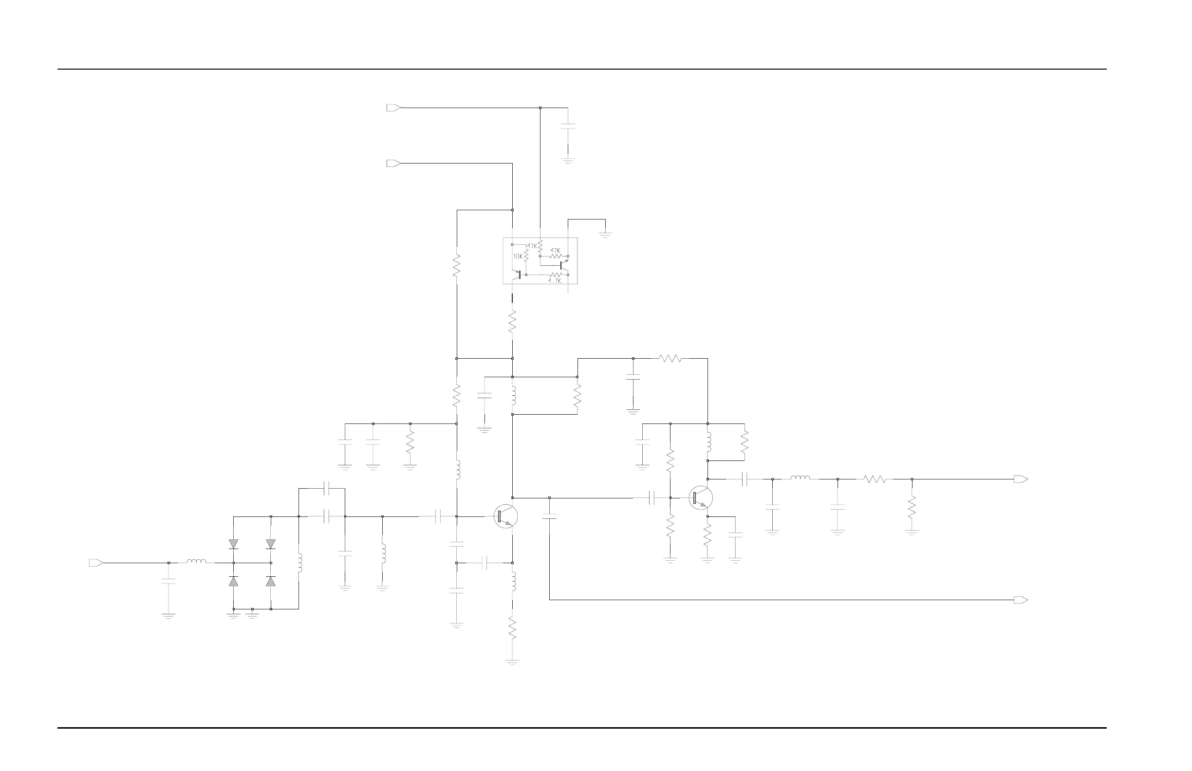
Figure 9.2-25. PMLE2537A/ PMLE2537D/ PMLE2537F Frequency Generation Unit (FGU) Schematic – Sheet 3 of 4
NP
NP
Rx_VCO_Out
2415010H04
C253
2113944A12
15pF
3.0pF
C259
2113740L35
2113944A27
C268
0R266
0613952R66
51pF
R253
0613952Q96
L257
390nH
9.1K
R262
14F2304142
D252
19Q2593160
5.6K
2.0pF
C260
10H2005184
0
R248
0613952R66
2113944A08
D253
10
H2005184
390nH
L255
2414032F41
0.1uF
C269
2113946B04
2113944A40
C263
100pF
C252
8.2pF
2113944M16
0662057M50
R261
100
R257
0613952Q42
51
10H2005184
D251
390nH
2414032F41
L254
2113946B04
0.1uF
0.1uF
C262
2113946B04
C254
47
14Q2593160
R265
R252
0613952Q93
6.8K
9.1pF
C258
2113944M17
100pF
C261
04A4493112
4885061Y01
Q251
2113944A40
4815055H01
UMC5NT2G
Q253
C255
100pF
18A4493112
24pF
C267
49Q2593160
7.5K
R260
390nH
L256
2414032F41
0
R249
120
0613952Q51
R256
10H2005184
0R269
0613952R66
D254
4885061Y01
Q252
12pF
C257
2113944M20
36nH
L252
2415427H37
2113944M16
8.2pF
C251
L251
390nH
2414032F41
C256
10pF
2113944M18
L253
IDCTR
12.5nH
2415427H26
L258
15nH
C265 100pF
100pF
C295
2113944A40
2113944A40
100pF
C266
R263
04
A4493112
5.6pF
85Q2593160
240
PRES_RX_IN
RX_LO_IN
VCTRL
AUX2
4.6VSF_OUT
2113944A19
C264

Table of Contents

Other manuals for Motorola XTS 2500

Related product manuals