EasyManua.ls Logo

Movacolor MCTC - Batch Unloading Connection Examples

Movacolor MCTC
71 pages
Print Icon
To Next Page IconTo Next Page
To Next Page IconTo Next Page
To Previous Page IconTo Previous Page
To Previous Page IconTo Previous Page
Loading...
44
MCTC manual
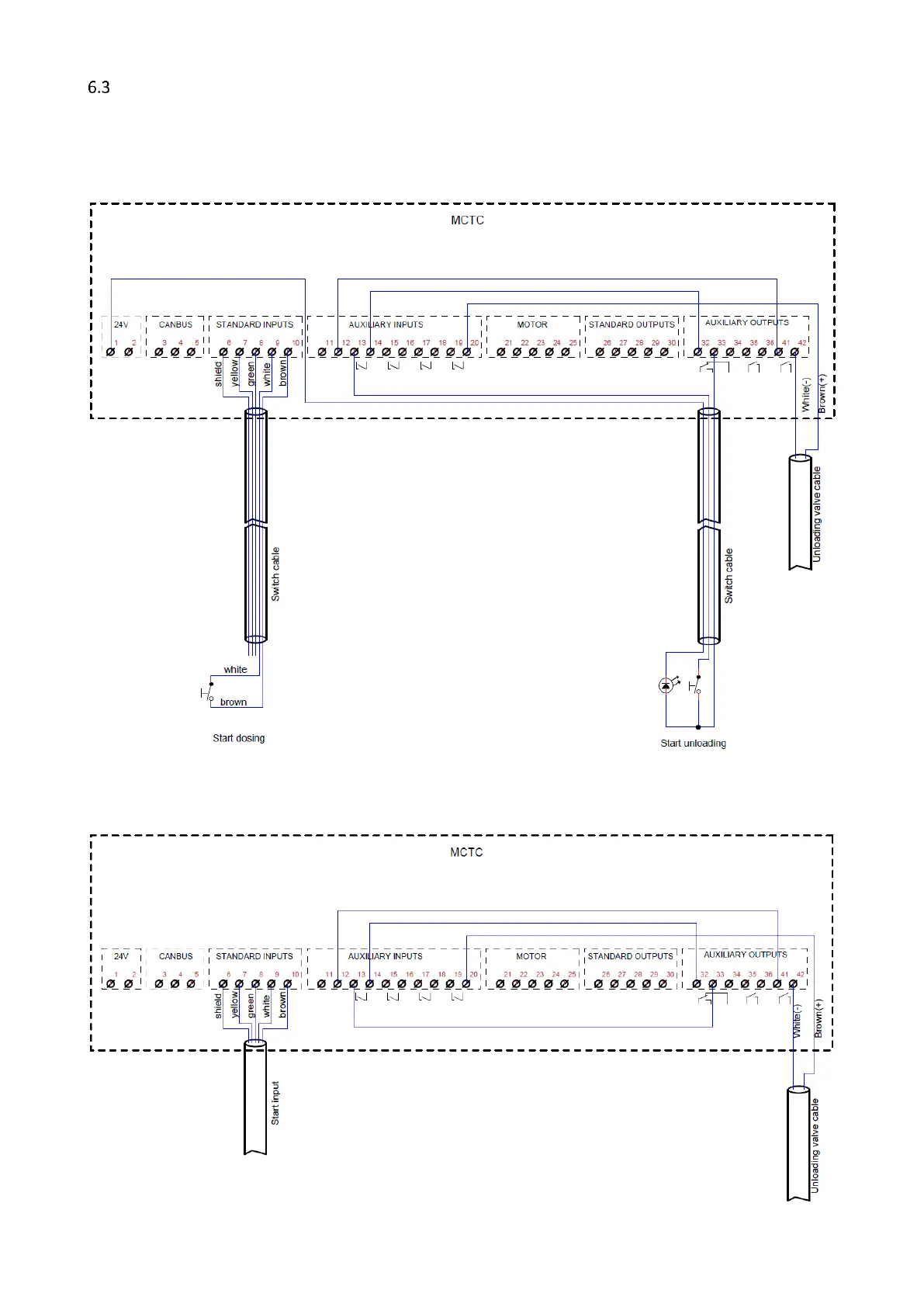
Connection examples batch unloading
6.3.1 Example 1 Batch with unloading controlled manually
In this example, the start input and the unloading input are both controlled manually. When the Start dosing
button is pushed, the system starts dosing. When dosing is ready, a light turns on and unloading can be
activated by pushing the unloading button.
6.3.2 Example 2 Batch with unloading controlled by MCTC
In this example, the systems starts dosing when an external start input is given. When a batch is ready,
output 1 will activate input 1 and the batch is unloaded after the loading delay time.