EasyManua.ls Logo

MP PUMPS FLOMAX 8 - Page 20

MP PUMPS FLOMAX 8
24 pages
Print Icon
To Next Page IconTo Next Page
To Next Page IconTo Next Page
To Previous Page IconTo Previous Page
To Previous Page IconTo Previous Page
Loading...
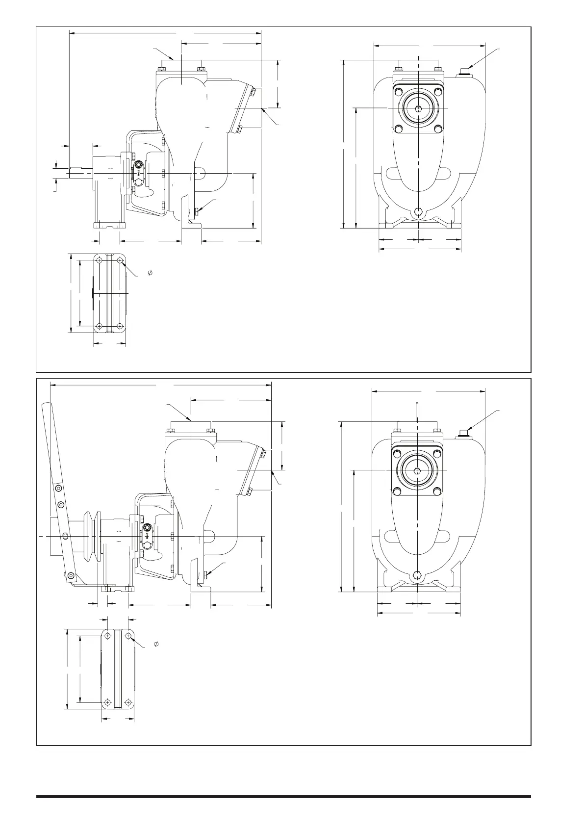
Page 20 of 24 FLOMAX 8 BZ AL (en)
FM8 BZ PED
6.25
12.79
8.50
3.25 3.00
9.16
1/2"
PIPE PLUG
1.50 4.69
6.06
14.60
3.63
4.56 1.56
4.17
1.79
.750
.749
2" NPT
DISCHARGE
2" NPT
SUCTION
1/4" NPT
PIPE PLUG
(4)
.41
HOLES
5.00
6.00
2.44
Figure 17
FM8 BZ CLUTCH
6.25
12.79
8.50
3.25 3.00
9.16
1/2"
PIPE PLUG
1.50
4.17
4.56
16.61
6.06
3.63
4.69
.75
2" NPT
DISCHARGE
2" NPT
SUCTION
1/4"
PIPE PLUG
1.56
2.44
5.00 6.00
.41
(4) HOLES
Figure 18