EasyManua.ls Logo

mr. steam CU-500 - WATER GAUGE & GAUGE GLASS INSTALLATION

Default Icon
36 pages
Print Icon
To Next Page IconTo Next Page
To Next Page IconTo Next Page
To Previous Page IconTo Previous Page
To Previous Page IconTo Previous Page
Loading...
mr
.
steam
®
C U S E R I E S Installation, Operating & Maintenance Manual
26
IMPORTANT:
Read all warnings and instructions before performing installation or maintenance.
Safety glasses and gloves should be worn at all times when working with or exam-
ining water gauge glass and connections.
Pressure in generator to be at zero before proceeding. Improper installation or maintenance of
gauge glass and connections can cause immediate or delayed breakage resulting in bodily injury
and/or property damage.
IMPORTANT:
O
nly properly trained personnel should install
and maintain water gauge glass and connections. Pressure in
generator must be at zero before proceeding. Remember to
wear safety gloves and glasses during installation. Before
installing, make sure all parts are free of chips and debris.
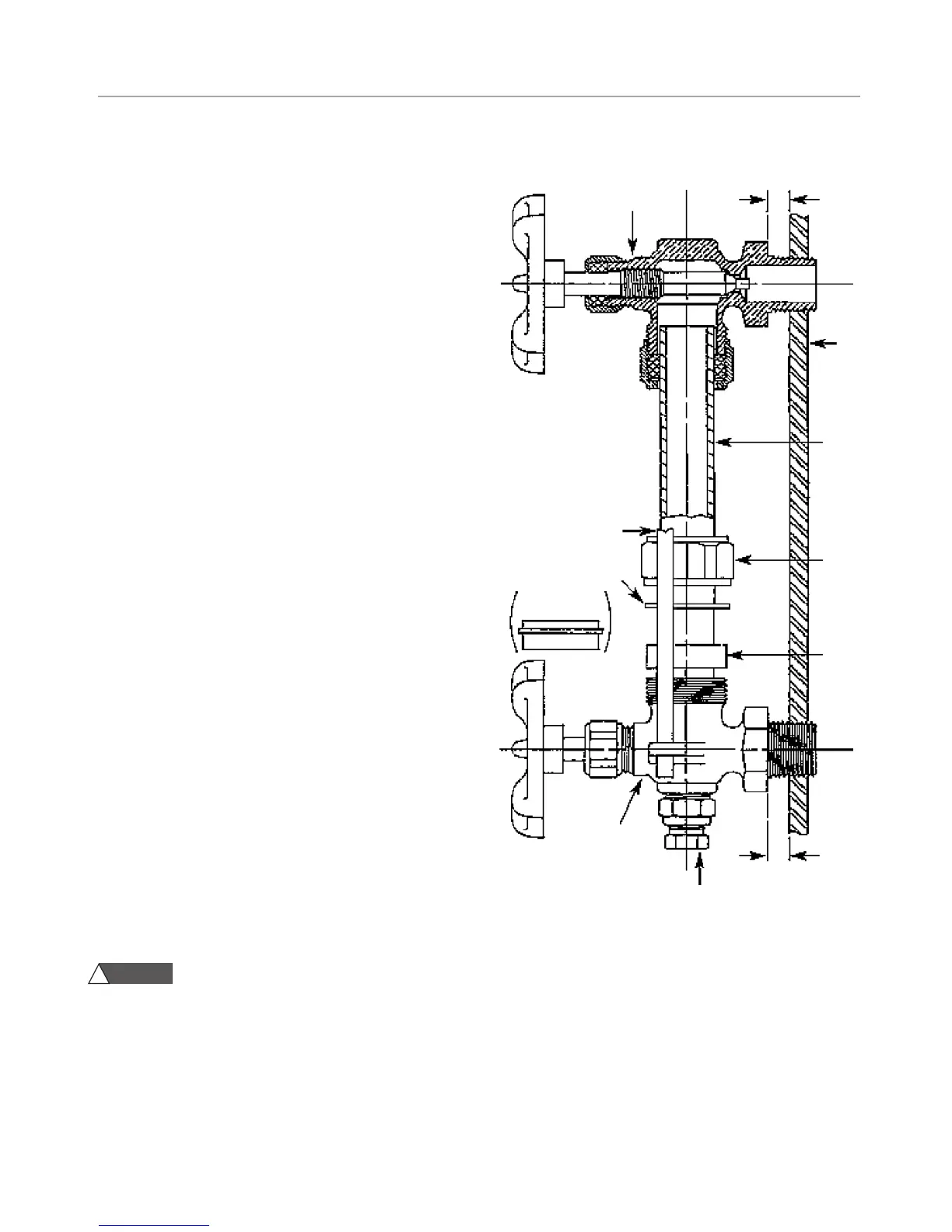
1. Apply Teflon tape or pipe dope to pipe threads. Install top
gauge fitting (fitting without a drain valve) into the upper
most tapping. Wrench tighten the fitting until it is snug
and the glass outlet is pointing at five o'clock (about
1
⁄8
turn from its final downward vertical position).
2. Install the bottom gauge fitting (the fitting with a drain
valve) until it is snug and the glass outlet is pointing direct-
ly upward. Verify top and bottom fittings are threaded into
the tapping the same number of turns (distance A = dis-
tance B).
3. Remove glass packing nut, friction washer (or packing
gland, depending upon the model), and glass packing from
the fittings, and place them, in the same order, on to both
ends of the gauge glass. Push both packings about an inch
up the gauge glass.
4. Gently insert one end of the glass into the top gauge fit-
ting. Keeping the glass inside the top fitting, gently rotate
the top gauge fitting clockwise until vertically aligned with
the bottom gauge, then insert glass into bottom fitting
until glass bottoms out on the shoulder inside the bottom
fitting.
5. Carefully raise glass about
1
16" and slide lower glass
packing down until the glass packing contacts the lower
gauge fitting. DO NOT allow the glass to remain in con-
tact with any metal!
6. Carefully slide upper glass packing up as far as possible.
7. Hand tighten both glass packing nuts, then tighten 1/2
turn more by wrench. Tighten only enough to prevent
leakage. DO NOT OVER TIGHTEN! If any leakage should
occur, tighten slightly, a quarter turn at a time, checking
for leakage after each turn.
Vessel Wall
Gauge
Glass
Glass
Packing
Nut
Glass
Packing
Top Gauge
Fitting
Guard Rail
Friction Washer
(or Packing Gland)
Bottom
Gauge Fitting
Drain Valve
A
B
WATER GAUGE & GAUGE GLASS INSTALLATION
WARNING
!

Related product manuals