EasyManua.ls Logo

mr. steam CU-500 - Typical Component Arrangement CU 360-CU 1400; Cu 2000-Cu4500; Auxiliary Manual Reset Low Water Cutoff

Default Icon
36 pages
Print Icon
To Next Page IconTo Next Page
To Next Page IconTo Next Page
To Previous Page IconTo Previous Page
To Previous Page IconTo Previous Page
Loading...
33
mr
.
steam
®
C U S E R I E S Installation, Operating & Maintenance Manual
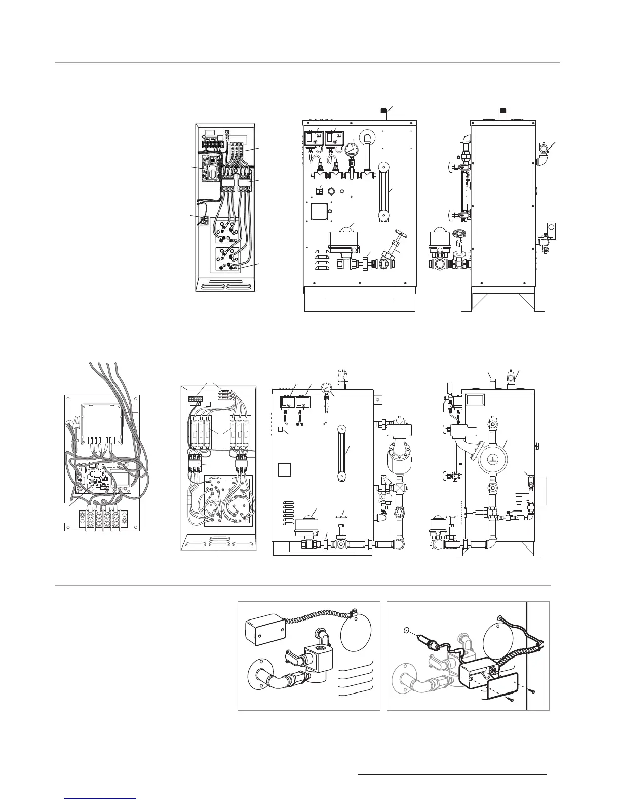
CU 360-1400 Typical
Component
Arrangement
CU 2000-4500 with
Digital 1, Clock and
Blowdown
All drawings for illustrative purposes only.
Contactor
Terminal
Block
Fuses
Heating
Elements
Front Right Side
G
A J
H
B
L
K
D I
C
F E
A
F
E
G
Front Right Side
J
H
K
C
I
D
Install probe, junction box and cableCompleted Assembly
Auxiliary Manual Reset
Low Water Cutoff
Available on CU 2000-4500
For CU 2000-3000 a block off
plate is used where the junction
box is shown
For CU 4500 there is a junction
box as shown.
Blowdown
Control Panel
Time Delay
Relay Board
Terminal
Blocks
Contactors
Heating
Elements
Liquid
Level
Control
Board
AUX
LWCO
LABEL FUNCTION
A Steam Outlet
B Water Inlet
C
Drain Outlet
D
Optional Automatic
Blowdown Valve
E High Limit Pressure
Control
F Operating Pressure
Control
G Pressure Gauge
H Gauge Glass Assembly
I Drain Valve
J Safety Valve
K On/Off Switch
L Mechanical low water
cutoff and feeder
(MM150)

Related product manuals