EasyManua.ls Logo

mr. steam CU-500 - Page 9

Default Icon
36 pages
Print Icon
To Next Page IconTo Next Page
To Next Page IconTo Next Page
To Previous Page IconTo Previous Page
To Previous Page IconTo Previous Page
Loading...
mr
.
steam
®
C U S E R I E S Installation, Operating & Maintenance Manual
9
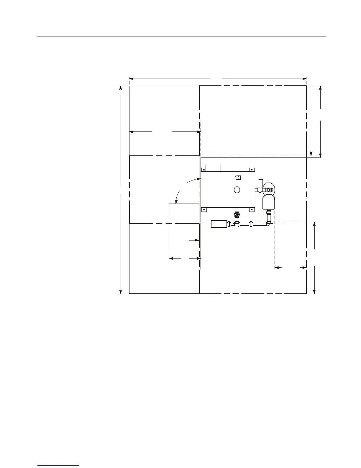
1 MIN*
16 MIN*
1
MIN**
36 MIN*
87
180
MAX
103
36 MIN*
13
Panel
Clearance
Service Area
Clearance
Service Area
Clearance
Service Area
Clearance
36
MIN*
*Access to service areas to be supplied by customer.
Access door must not be less than 24” wide x 78” high.
Refer to NEC 110.26 for details
**1” Minimum distance from combustible materials all
around except as noted.
CLEARANCE SPECIFICATIONS (cont.)
Figure 7: CU4500

Related product manuals