EasyManua.ls Logo

MSI A520M PRO-C DASH - 元件總覽

MSI A520M PRO-C DASH
165 pages
Print Icon
To Next Page IconTo Next Page
To Next Page IconTo Next Page
To Previous Page IconTo Previous Page
To Previous Page IconTo Previous Page
Loading...
8
󱯯󱠁󶱳󸌶
󱯯󱠁󶱳󸌶
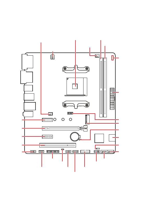
JFP1
JCOM1 JUSB1 JUSB3
JUSB2
JFP2
M2_1
JBAT1
JTPM1
SATA1
SATA2
PCI1
JAUD1
PCI_E3
PCI_E2
PCI_E1
󷴺󵤾󲑠󷉥󳐄
CPU_PWR1
CPU_FAN1
SYS_FAN1
JCI1
JLPT1
ATX_PWR1
󱩳󹑏
󳮜󶈾󵕾
DIMMA1
DIMMB1


Table of Contents

Related product manuals