EasyManua.ls Logo

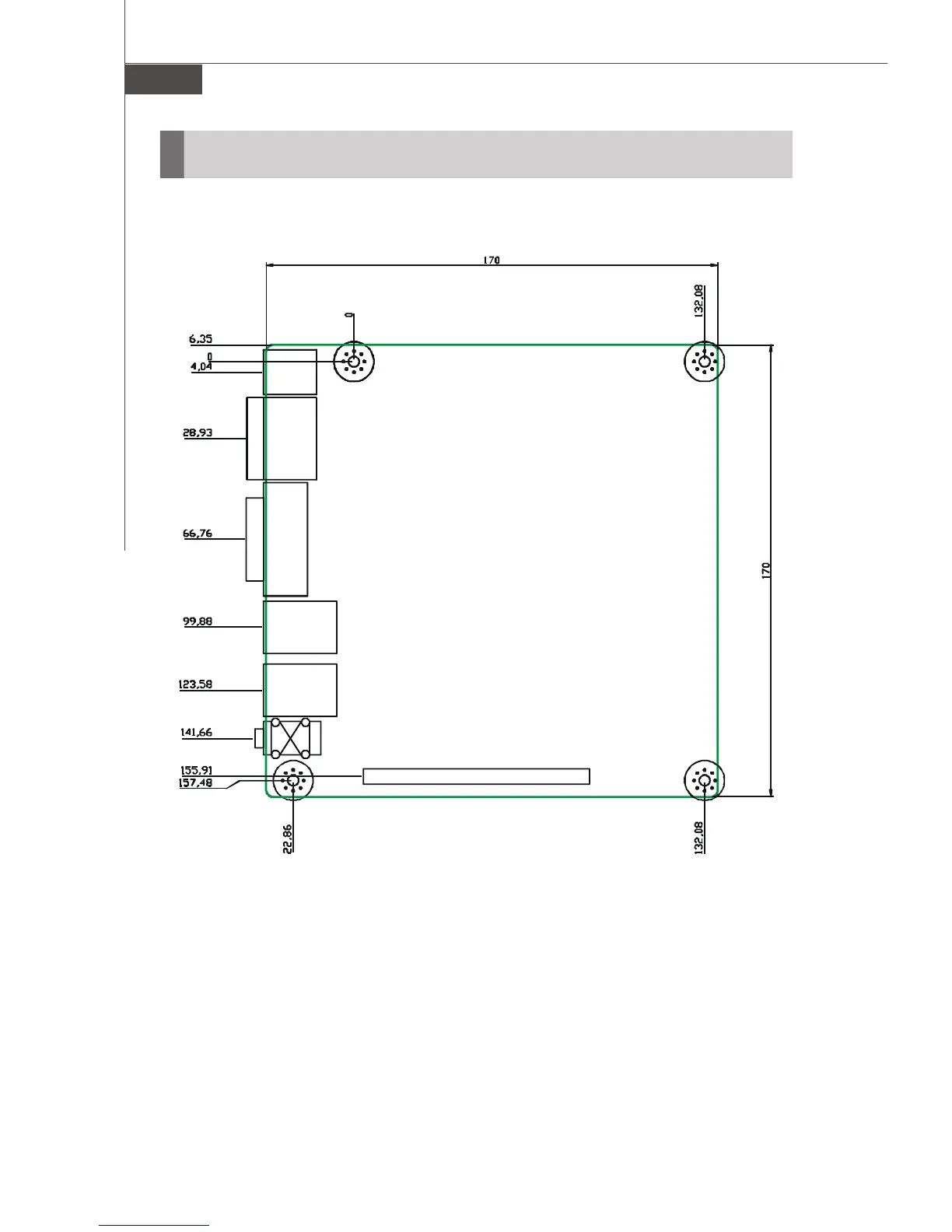
MSI MS-9802 - Board Dimension

MSI MS-9802
90 pages
Print Icon
To Next Page IconTo Next Page
To Next Page IconTo Next Page
To Previous Page IconTo Previous Page
To Previous Page IconTo Previous Page
Loading...
MS-9802 Mainboard
2-6
Board Dimension

Table of Contents

Related product manuals