EasyManua.ls Logo

MSI PRO H510M-B - 元件總覽

MSI PRO H510M-B
378 pages
To Next Page IconTo Next Page
To Next Page IconTo Next Page
To Previous Page IconTo Previous Page
To Previous Page IconTo Previous Page
Loading...
22
󱯯󱠁󶱳󸌶
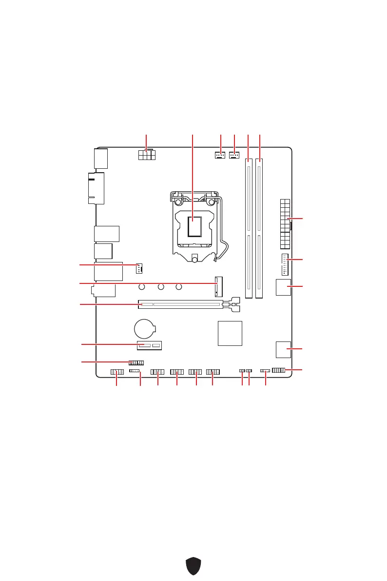
BA T1

JUSB2
ATX_PWR1
CPU_FAN1
SYS_FAN1

JTPM1
󷴺󵤾󲑠󷉥󳐄
CPU_PWR1
JFP2
JBAT1
JCI1
JFP1
JUSB3
JUSB1
JCOM1
JAUD1
PCI_E2
JLPC1
M2_1
PCI_E1
SYS_FAN2
JRGB1
DIMMB1
DIMMA1

Table of Contents

Related product manuals