EasyManua.ls Logo

NEC ITY-6D - Guided Option Setup; Wall Mounting the Phone

NEC ITY-6D
44 pages
Print Icon
To Next Page IconTo Next Page
To Next Page IconTo Next Page
To Previous Page IconTo Previous Page
To Previous Page IconTo Previous Page
Loading...
Guided Option Setup
Wall Mount the Phone
The IP4WW-Wall Mount Unit is used to mount the DT820 terminals to
the wall. This unit connects to the back of the terminal.
Prepare the wall mounting
1.
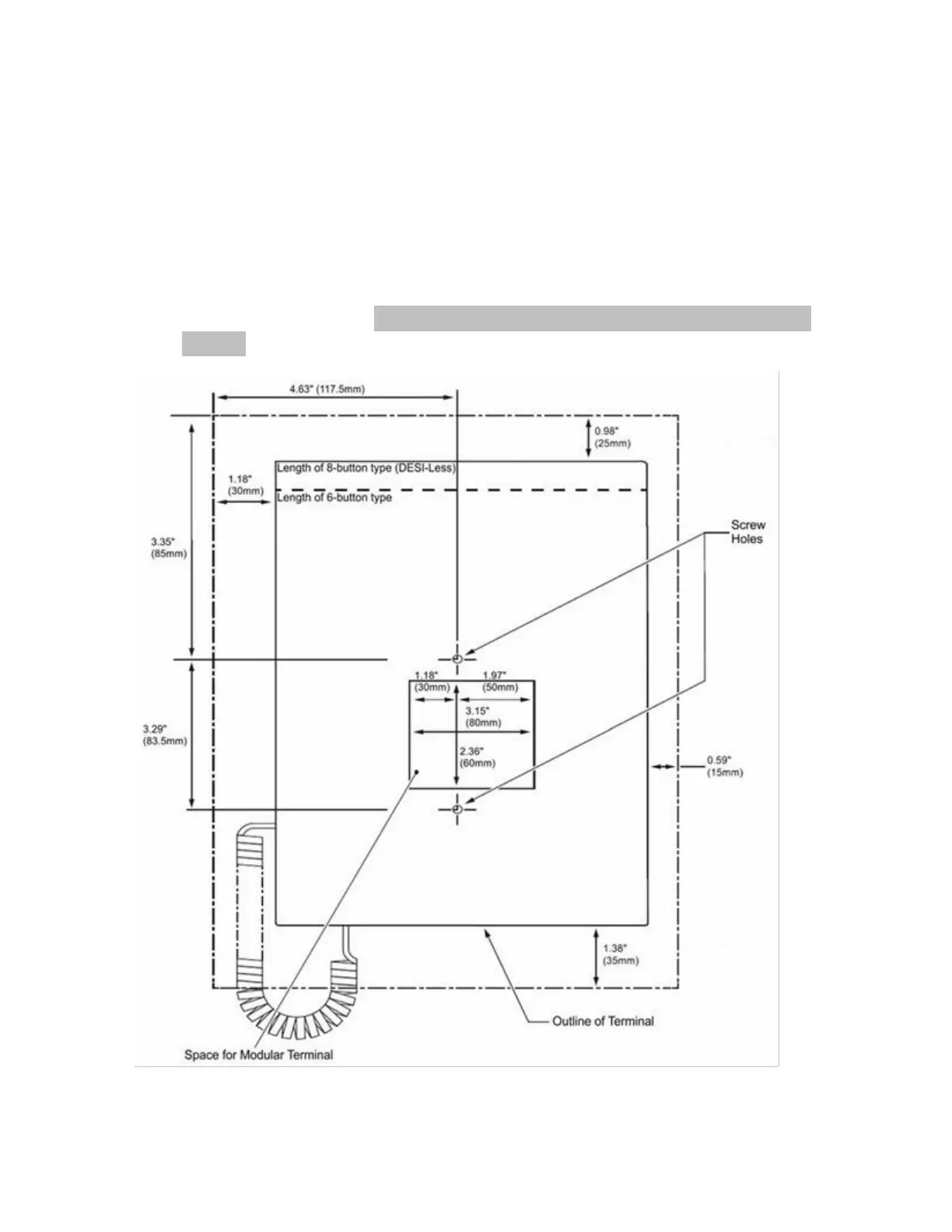
Use the template in Figure 15: IP4WW-Wall Mount Unit Spacing
Guide for required spacing before drilling.
Figure 15: IP4WW-Wall Mount Unit Spacing Guide
34

Other manuals for NEC ITY-6D

Related product manuals