EasyManua.ls Logo

Newmac CL 96G - Page 20

Default Icon
80 pages
Print Icon
To Next Page IconTo Next Page
To Next Page IconTo Next Page
To Previous Page IconTo Previous Page
To Previous Page IconTo Previous Page
Loading...
20
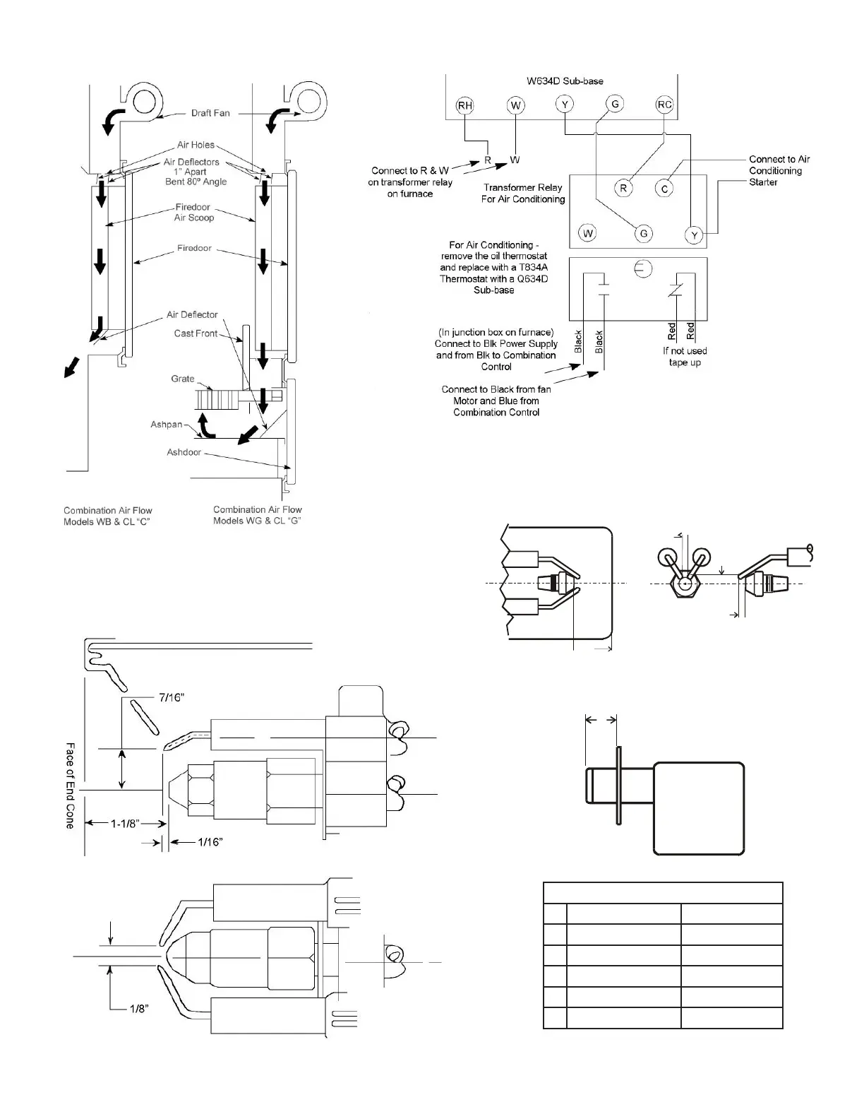
Figure 14 - COMBINATION AIR FLOW Figure 15 - AIR CONDITIONING INSTALLATION
Figure 16A - ELECTRODE SETTING FOR AERO AND BECKETT
Figure 16B - ELECTRODE SETTING FOR RIELLO
Figure 16C - BURNER INSERTION
Z
A
B
C
E
DIMENSIONAL RELATIONSHIPS
AERO & BECKETT RIELLO
A 1/8” 5/32”
B 7/16” 13/64”
C 1/16” 5/64” to 7/64”
Z 1-3/8” -
E 7 7/8” 7 1/2
Figure 16D

Related product manuals