EasyManua.ls Logo

Nibe ECS 40 - Page 37

Nibe ECS 40
40 pages
Print Icon
To Next Page IconTo Next Page
To Next Page IconTo Next Page
To Previous Page IconTo Previous Page
To Previous Page IconTo Previous Page
Loading...
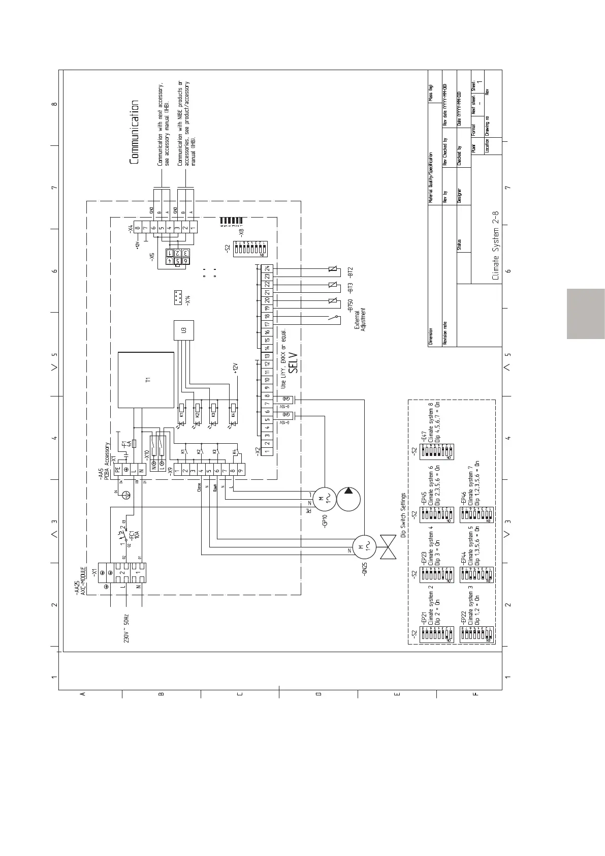
ELECTRICAL CIRCUIT DIAGRAM
Part Specification Sheet 051057-11
Page 2/2 Created:2020-02-13 10:24
JOV 2020-02-13
Production ASN 2012-04-02
0.001
WIRING DIAGRAM ECS
ELSCHEMA ECS
051057 11
37ECS 40/ECS 41 F-series | GB
F

Other manuals for Nibe ECS 40

Related product manuals