EasyManua.ls Logo

Nibe ES - Electrical Installation; General Electrical Safety; Wiring and Connections; Immersion Heater and Output Selection

Nibe ES
40 pages
Go to English
To Next Page IconTo Next Page
To Next Page IconTo Next Page
To Previous Page IconTo Previous Page
To Previous Page IconTo Previous Page
Loading...
ELECTRICAL INSTALLATION
NOTE
Electrical installation and service must be carried
out under the supervision of a qualified electrician,
and in accordance with applicable electrical safety
regulations.
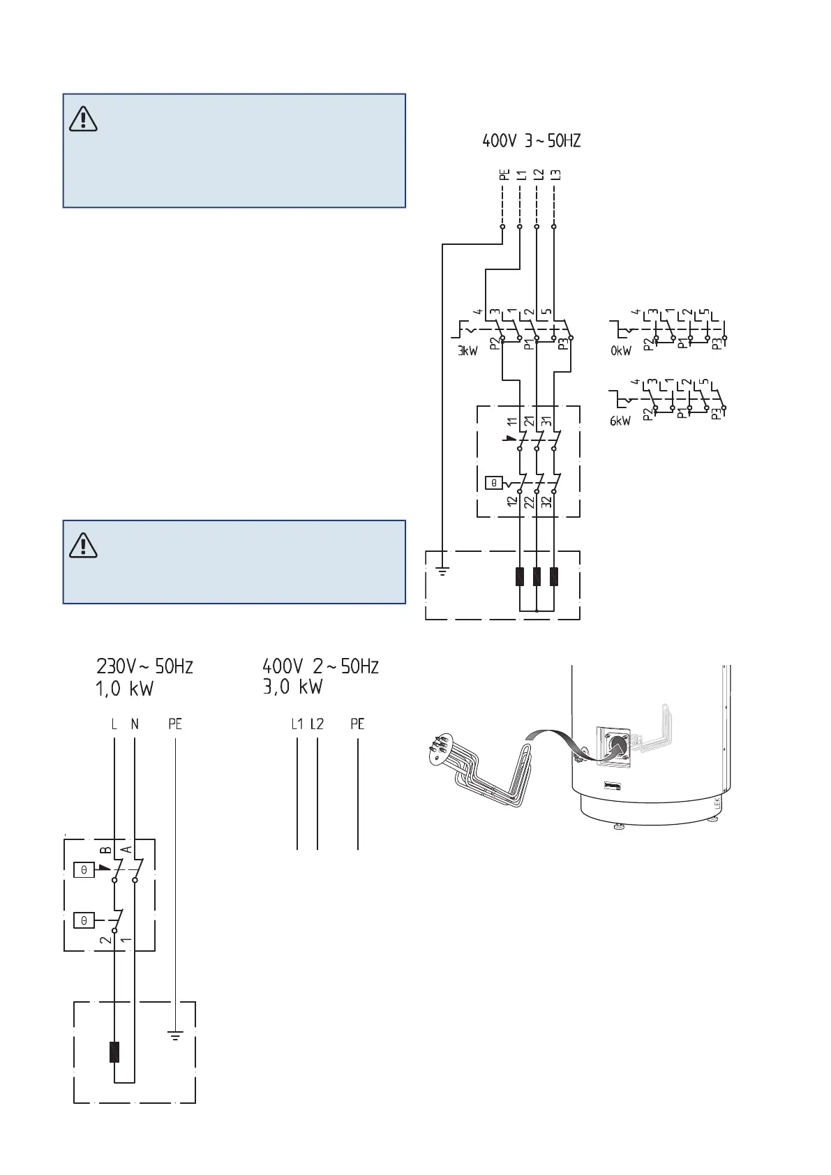
ES 160, ES 210, ES 300 must be installed via an isolator
switch with a minimum breaking gap of 3 mm. Minimum
cable area must be sized according to the fuse rating used.
Connect the incoming supply to the terminal block, incoming
supply (X1) according to the electrical wiring diagram.
ES 160 and ES 210 have a standard output of 3 kW (400 V~,
2-phase). The water heater can be connected to 230 V~
single-phase if required, which limits the output to 1 kW.
ES 160 and ES 210 can also be obtained in a 6 kW version
(400 V~, 3-phase) by special order.
ES 300 only supplied with an output of 6 kW.
ES 160, ES 210, ES 300 has a flanged immersion heater made
of stainless steel, to a Ø 80 mm connection opening, which
allows for simple dismantling, internal inspection and
cleaning of the tank.
NOTE
The water heater must be completely filled with
water before it is switched on.
Wiring diagram 1 kW/ 3 kW
Standard for ES 160 and ES 210
Wiring diagram 6 kW
Standard for ES 300 as well as alternative version on special
order for ES 160 and ES 210
Installation of 6 kW immersion heater
LEK
Output selector (6 kW)
Set the water heater’s output selector to the desired output.
Because the immersion heater receives the lowest surface
output at 3 kW, this position should be used first. When a
higher output is required, for example during economy rates,
set the output selector to 6 kW.
NIBE ES | EN18

Related product manuals