EasyManua.ls Logo

Nibe POOL 40 - Page 16

Nibe POOL 40
Print Icon
To Next Page IconTo Next Page
To Next Page IconTo Next Page
To Previous Page IconTo Previous Page
To Previous Page IconTo Previous Page
Loading...
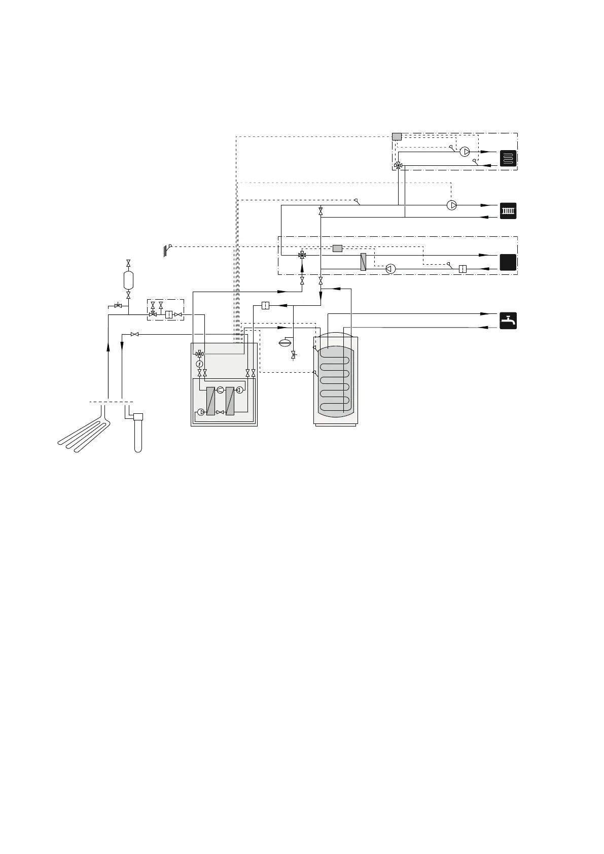
Outline diagram F1145/F1155 with POOL 40 and extra climate system
-FL3
-QM42
-QM12
-CM2
-QM34
-XL15
-QM31 -QM32
-HQ1
-EB100
-FL2
-CM1
-EB100-BT1
-EP12
-CP1
-BT7
-BT6
-RM2
-EP5
-GP9 -BT51 -HQ1
-AA25
-CL11
-QN19
POOL
-EB100-GP10
-EB100-BT25
-BT3
-BT2
-AA25
-QN11
-EP21
-GP20
POOL 40 | GB16

Related product manuals