EasyManua.ls Logo

Nibe POOL 40 - SMO 40 Electrical Connections; Connection of Sensors and External Blocking; Connecting the Supply; Caution

Nibe POOL 40
Print Icon
To Next Page IconTo Next Page
To Next Page IconTo Next Page
To Previous Page IconTo Previous Page
To Previous Page IconTo Previous Page
Loading...
SMO 40
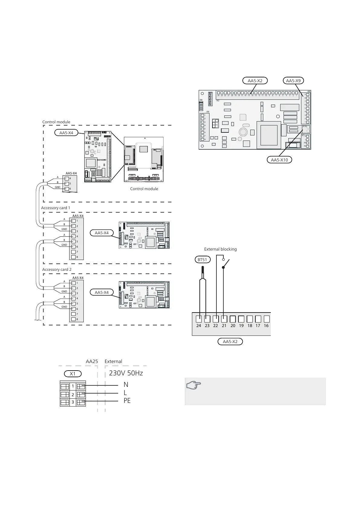
This accessory contains an accessory board (AA5) that is
connected to (AA5-X4) on control module.
If several accessories are to be connected, or are already
connected, the following cards must be connected in
series with the previous card.
Use cable type LiYY, EKKX or similar.
1
2
3
4
5
6
7
8
AA5-X4
4
A
B
GND
A
B
GND
A
B
GND
A
B
GND
A
B
GND
5
6
AA5-X4
1
2
3
4
5
6
7
8
AA5-X4
Control module
ON
1 2 3 4 5 6 7 8
-X9
-X2
24 20212223 1516171819 1011121314 56789 1
1
N
L
PE
PE
1
2
3
4
5
6
7
8
2
3
4
5
6
7
8
9
234
-X8
-X4
-X10
-X1
AA5-X4
ON
1 2 3 4 5 6 7 8
-X9
-X2
24 20212223 1516171819 1011121314 56789 1
1
N
L
PE
PE
1
2
3
4
5
6
7
8
2
3
4
5
6
7
8
9
234
-X8
-X4
-X10
-X1
AA5-X4
Control module
AA5-X4
Accessory card 1
Accessory card 2
LEK
ON
1 2 3 4 5 6 7 8
-X9
-X2
24
20
21
22
23
15
16
17
18
19
10
11
12
13
14
5
6
7
8
9
1
1
NL
PEPE
12345678
2 3 4
5 6 7
8 9
2
3
4
-X8
-X4
-X10
-X1
Connecting the supply
Connect the power supply to terminal block X1 as illus-
trated.
3
2
1
N
230V 50Hz
L
PE
AA25 External
X1
Overview accessory board (AA5)
ON
1 2 3 4 5 6 7 8
-X9
-X2
24 20212223 1516171819 1011121314 56789 1
1
N
L
PE
PE
1
2
3
4
5
6
7
8
2
3
4
5
6
7
8
9
234
-X8
-X4
-X10
-X1
AA5-X2 AA5-X9
AA5-X10
Connection of sensors and external blocking
Use cable type LiYY, EKKX or similar.
Pool sensor (BT51)
Connect the pool sensor to AA5-X2:23-24.
External blocking (optional)
A contact can be connected to AA5-X2:21-22 to allow
blocking of pool heating. When the contact closes, pool
heating is blocked.
External blocking
AA5-X2
24 20212223 1516171819 1314
BT51
External supply temperature sensor (BT25)
To connect BT25, see the relevant product’s Installer
Manual.
Caution
The relay outputs on the accessory board can
have a max load of 2 A (230 V) in total.
POOL 40 | GB20

Related product manuals