EasyManua.ls Logo

Nibe POOL 40 - Page 6

Nibe POOL 40
Print Icon
To Next Page IconTo Next Page
To Next Page IconTo Next Page
To Previous Page IconTo Previous Page
To Previous Page IconTo Previous Page
Loading...
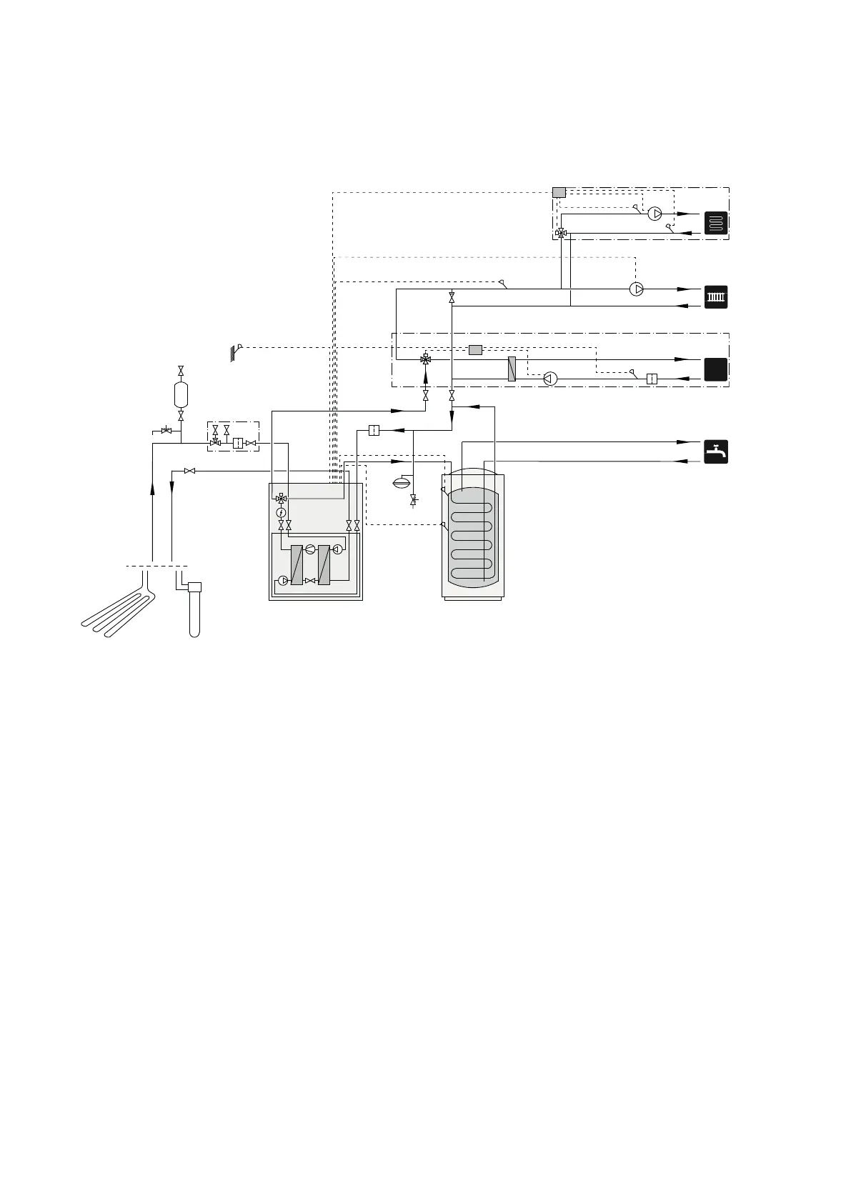
Principschema F1145/F1155 med POOL 40 och extra klimatsystem
-FL3
-QM42
-QM12
-CM2
-QM34
-XL15
-QM31 -QM32
-HQ1
-EB100
-FL2
-CM1
-EB100-BT1
-EP12
-CP1
-BT7
-BT6
-RM2
-EP5
-GP9 -BT51 -HQ1
-AA25
-CL11
-QN19
POOL
-EB100-GP10
-EB100-BT25
-BT3
-BT2
-AA25
-QN11
-EP21
-GP20
POOL 40 | SE6

Related product manuals