EasyManua.ls Logo

Nibe SPLIT ACVM270 - Page 9

Nibe SPLIT ACVM270
64 pages
Print Icon
To Next Page IconTo Next Page
To Next Page IconTo Next Page
To Previous Page IconTo Previous Page
To Previous Page IconTo Previous Page
Loading...
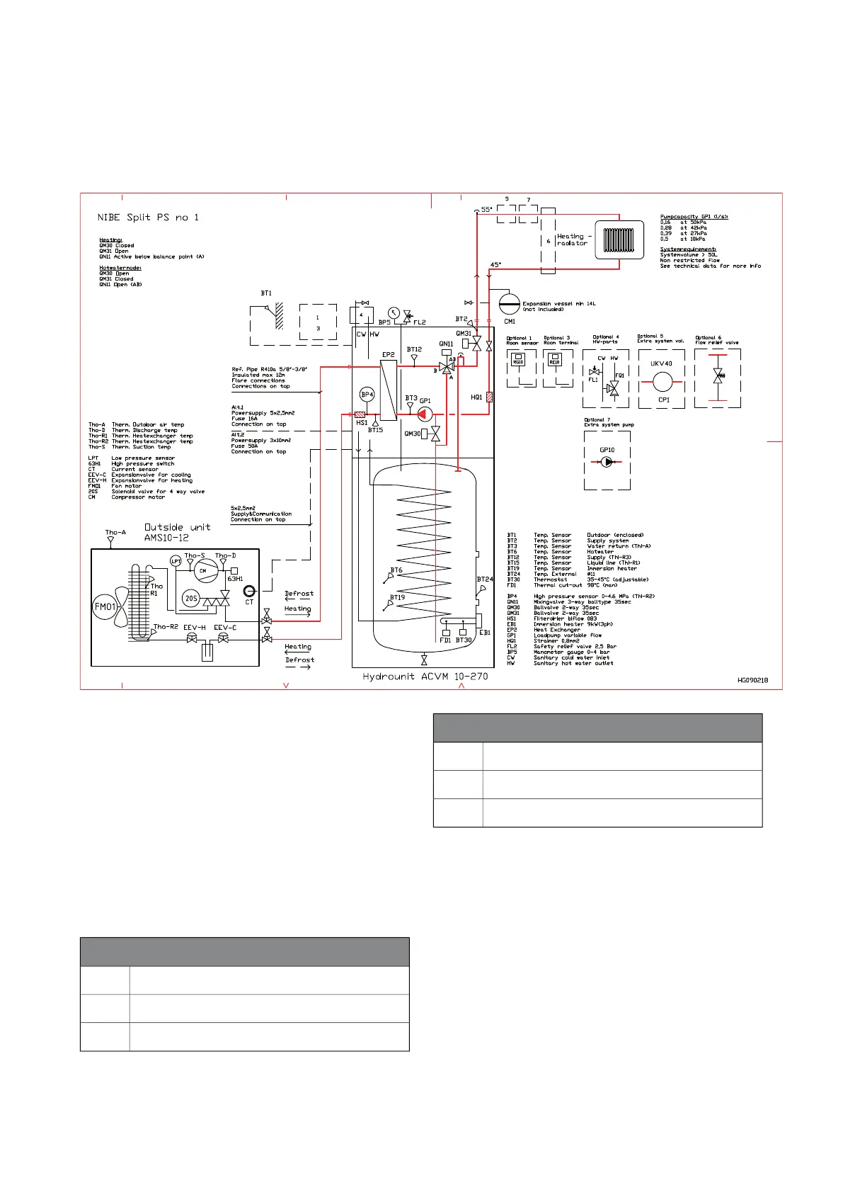
Radiators - only heating
Function
The heat pump prioritises hot water charging. The
compressor output is adjusted according to the outdoor
temperature. The charge pump varies the flow to main-
tain a high charge temperature.
When the water heater is full, the valves QM30 and
QM31 switch to the climate system. The heat pump is
then controlled by a calculated set point value on the
supply line. The compressor varies the output according
to the demand. The charge pump runs at a fixed set
speed.
If the compressor does not manage the entire heat de-
mand, the addition is connected and the heat shunted
out on the flow line.
Heating mode
ClosedQM30
OpenQM31
Active during balance point (A)QN11
Hot water mode
OpenQM30
ClosedQM31
Open (AB)QN11
Installation requirements
See page 7.
9Chapter 3 | System descriptionNIBE SPLIT ACVM270