EasyManua.ls Logo

Nice SWN Series

Nice SWN Series
240 pages
To Next Page IconTo Next Page
To Next Page IconTo Next Page
To Previous Page IconTo Previous Page
To Previous Page IconTo Previous Page
Loading...
5
5
2
6
5
55
55,0
391
120
122,5 dim max
3
2
5
4
1
C
A
B
5
5
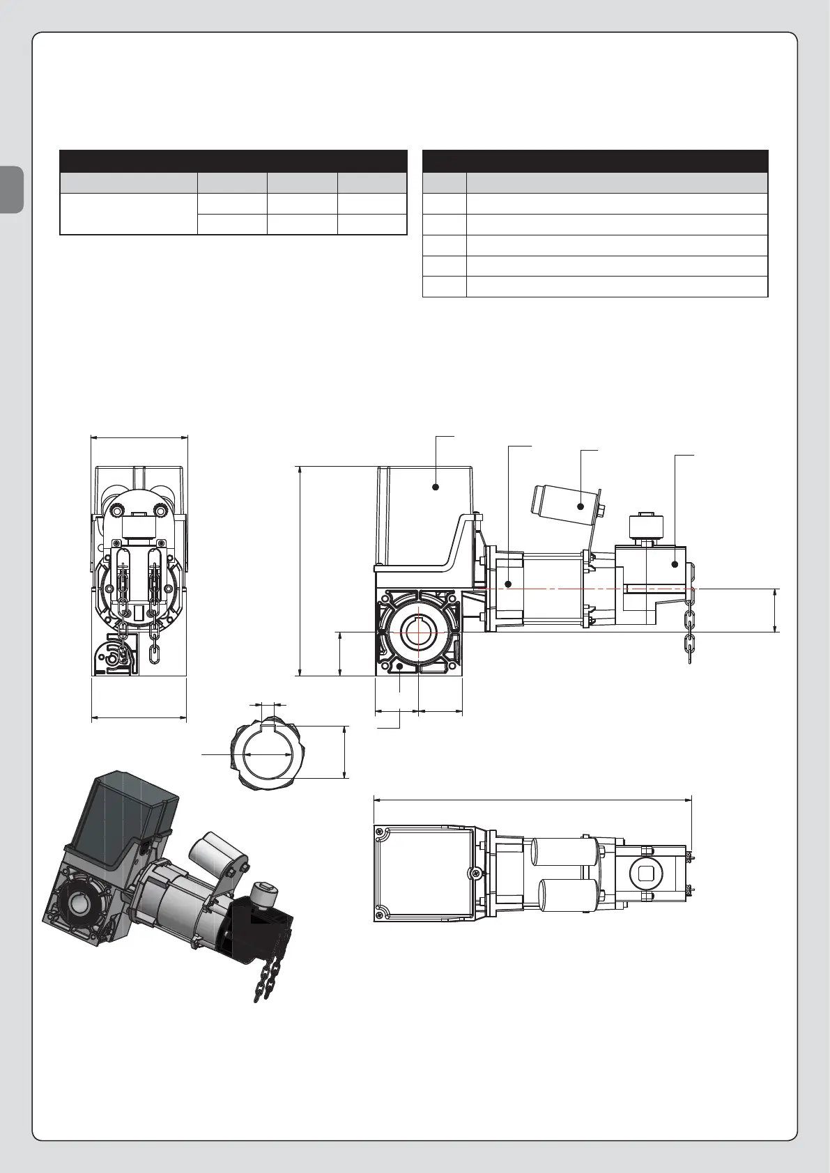
Tableau 1
Description Ø A B C
26-*$   
  
Tableau 2
Description
Réducteur
2 ,NSDTQġKDBSQHPTD
3 +NFDLDMSjMCDBNTQRD
Dispositif manuel d’urgence
"NMCDMR@SDTQR
Fiche produit SWN 70 - 24 - KE
FR
18 – Français

Table of Contents

Related product manuals