EasyManua.ls Logo

Nirvana DISTINCTION SIM50IV - Dimensions de Lappareil

Nirvana DISTINCTION SIM50IV
56 pages
Print Icon
To Next Page IconTo Next Page
To Next Page IconTo Next Page
To Previous Page IconTo Previous Page
To Previous Page IconTo Previous Page
Loading...
4
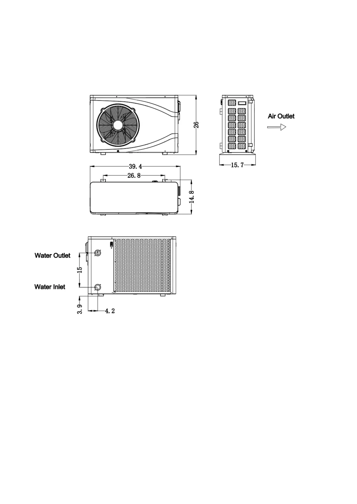
2.2.Dimensions de lappareil
Modèle: SIM50IV

Related product manuals