EasyManua.ls Logo

Noble HT-180EC - SCHEMATICS; ELECTRICAL WIRING DIAGRAMS

Noble HT-180EC
48 pages
Print Icon
To Next Page IconTo Next Page
To Next Page IconTo Next Page
To Previous Page IconTo Previous Page
To Previous Page IconTo Previous Page
Loading...
07610-004-92-22-A
42
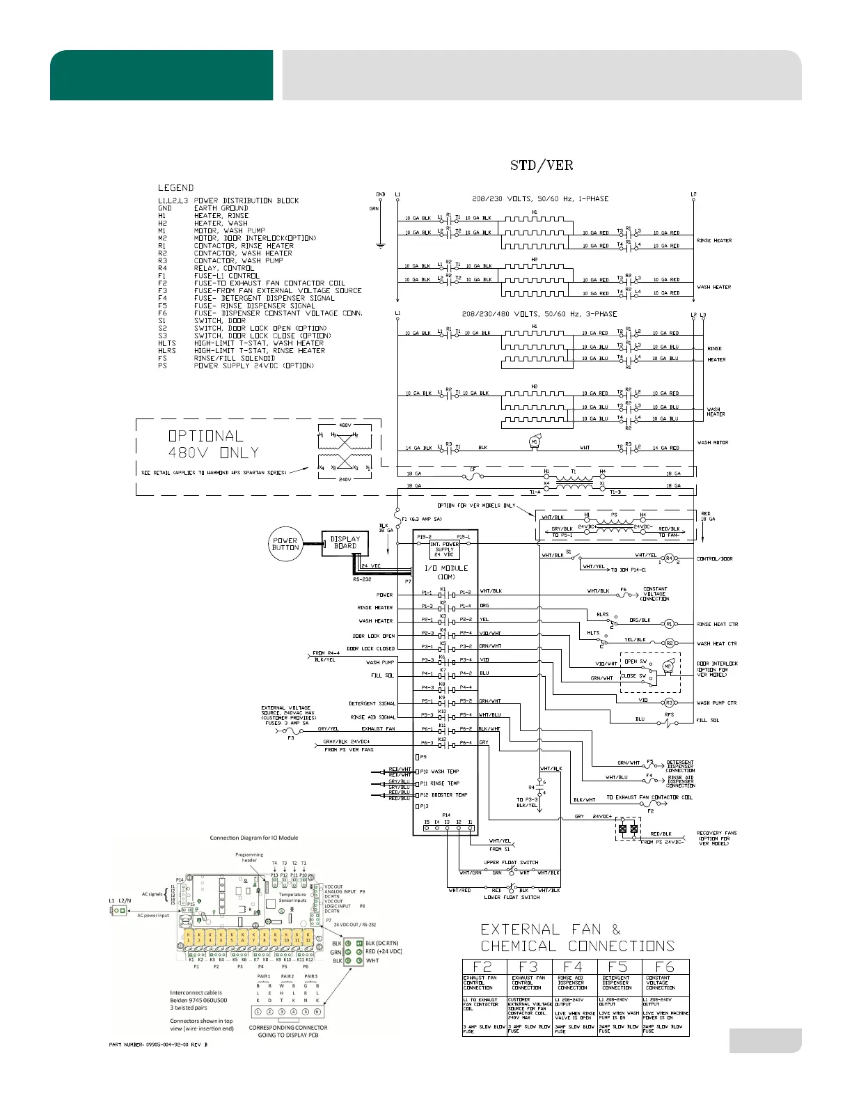
SCHEMATICS
208/230/460 V, 50/60 HZ, 1-PH/3-PH
HT-180EC

Related product manuals