EasyManua.ls Logo

NOREMAT Optima 51 - Technical Specifications

Default Icon
49 pages
Print Icon
To Next Page IconTo Next Page
To Next Page IconTo Next Page
To Previous Page IconTo Previous Page
To Previous Page IconTo Previous Page
Loading...
Operators manual
Optima 51 / M51 / M56 / M57T / 60T
16
Dynapôle Ludres/Fléville, 166 rue Ampère/BP 60093 - 54714 LUDRES - FRANCE -l.+33 (0)3 83 25 69 60 - Fax. +33 (0)3 83 26 12 85
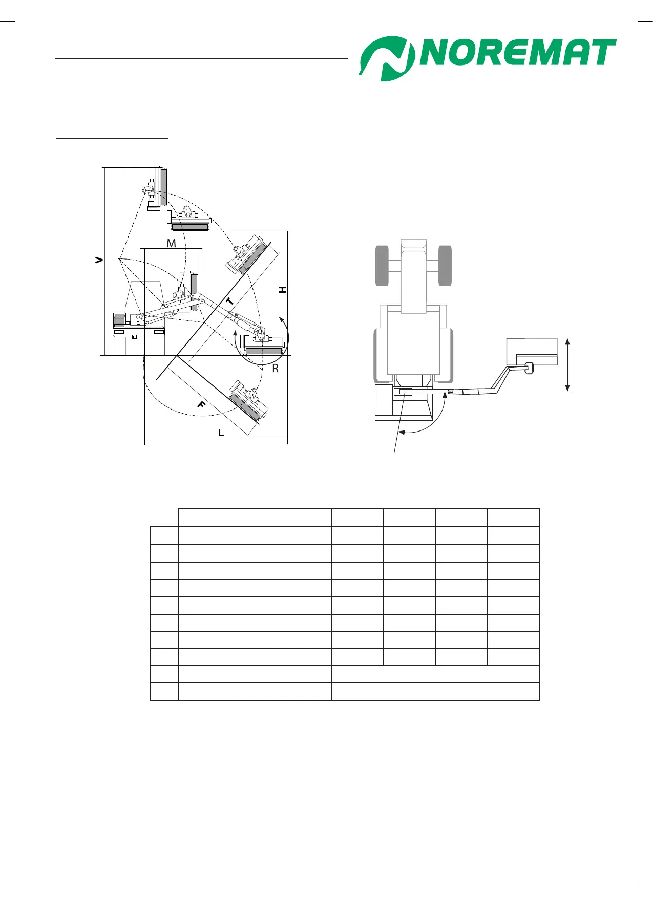
2. Technical specications
2 1Performance
Model 51 M51 M56 M57T
L
Maximum lateral reach
*
5.10 m 5.10 m 5.60 m 5.70 m
V Vertical reach
6.55 m 6.55 m 7.00 m 7.10 m
T Bank reach
5.25 m 5.25 m 5.70 m 5.80 m
H Over-hedge reach
4.40 m 4.40 m 4.65 m 4.70 m
F Ditch reach
3 m 3 m 3.50 m 3.60 m
M Minimum lateral reach
1.75 m 1.75 m 1.85 m 1.75 m
N Forward reach
0.98 m 1.63 m 1.63 m 2.33 m
Telescopic
NO NO NO YES
P Orientation angle
100°
R Tool orientation
230°
P
N
gure 1.14
*Measured from the centreline of the tractor.
Average dimensions, variable according to the type of tractor.
Technical characteristics