EasyManua.ls Logo

Noritz NRCB199DV - Initial Operation and Settings; First-Time Unit Setup Procedures

Noritz NRCB199DV
40 pages
Print Icon
To Next Page IconTo Next Page
To Next Page IconTo Next Page
To Previous Page IconTo Previous Page
To Previous Page IconTo Previous Page
Loading...
12
Initial Operation
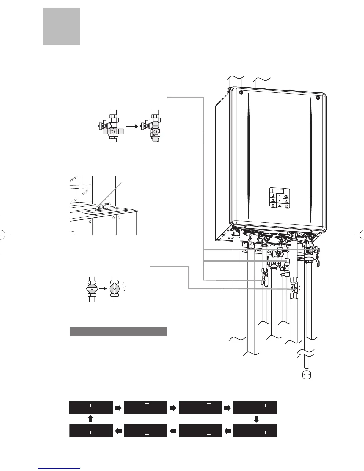
Before the rst use of your Combi Boiler do the following:
Follow steps
1through5
.
1
Open the water supply valve and
the auto feeder shutoff valve.
Open a hot water xture to conrm that
water is available, and then close the
xture again.
The unit starts auto feeding for heating.
The display will change to the following
rotational pattern.
This is normal operation. When auto
feeding is complete, the rotational
pattern turns off automatically.
3
Open the gas supply valve.
Hot water xture
2
Turn on the power.
4
5
Donottouchwithwethands.
CLOSED
OPEN

Other manuals for Noritz NRCB199DV

Related product manuals