EasyManua.ls Logo

Noritz NRCB199DV - General Parts; Main Unit

Noritz NRCB199DV
40 pages
Print Icon
To Next Page IconTo Next Page
To Next Page IconTo Next Page
To Previous Page IconTo Previous Page
To Previous Page IconTo Previous Page
Loading...
8
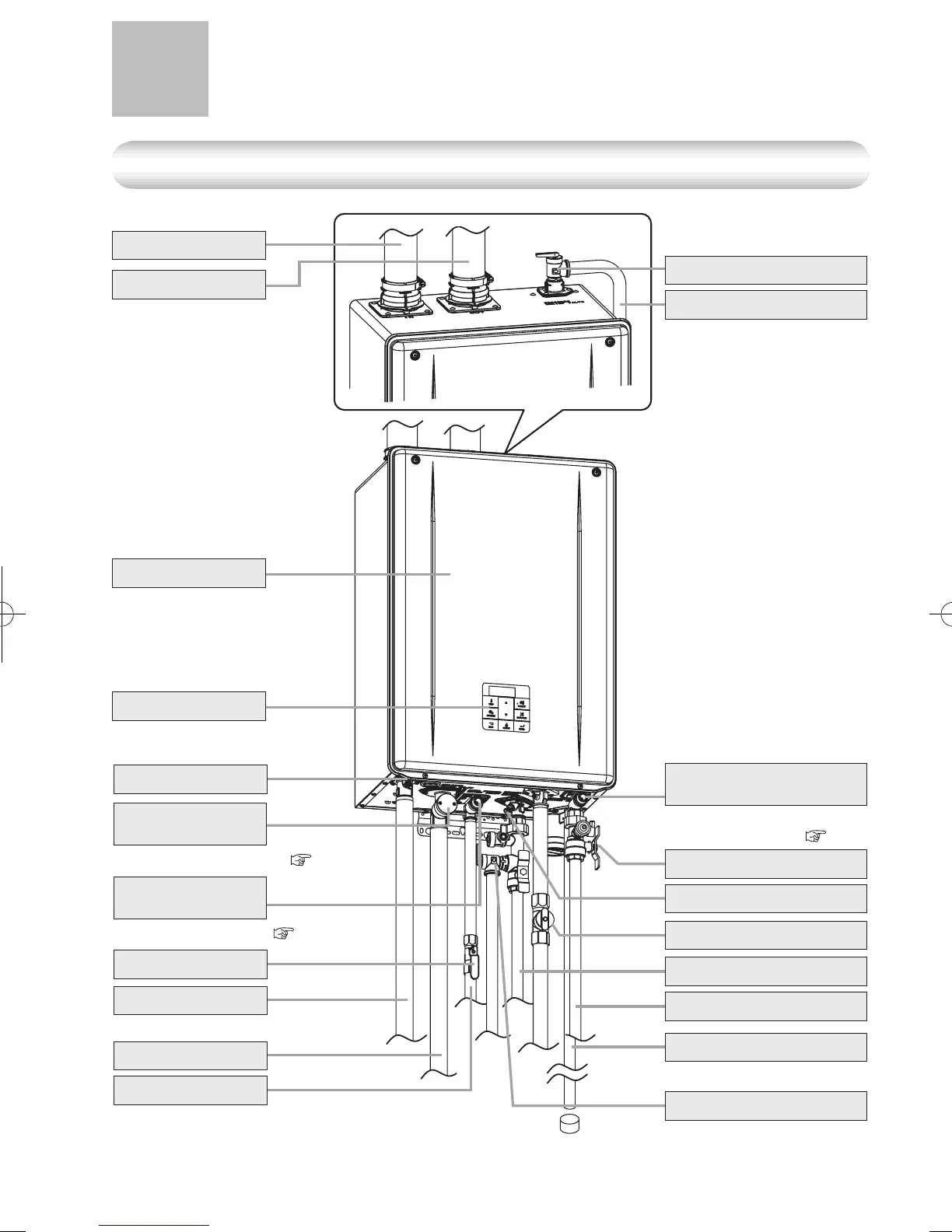
Main Unit
General Parts -1
ExhaustPipe
IntakePipe
* Theaboveillustrationshowsanexampleofinstallation.
The exact installation conguration may be slightly different.
Operation Panel
FrontCover
WaterDrainValve
(with Water Filter)
WaterDrainValve
(with Water Filter)
HeatingSupply
AutoFeederShutoffValve
WaterDrainValve
Heating Return
Auto Feeder Inlet
(Inside Heating Return Inlet)
( p.30)
(Inside Auto Feeder Inlet)
( p.29)
Discharges the condensate.
(Inside Domestic Water Inlet)
(
p.29)
GasSupplyValve
WaterDrainValve
WaterSupplyValve
Hot Water Outlet (DHW)
PressureReliefValve(DHW)
Drain Pipe
Cold Water Inlet (DHW)
WaterDrainValve
(with Water Filter)
PressureReliefValve(Heating)
Drain Pipe

Other manuals for Noritz NRCB199DV

Related product manuals