EasyManua.ls Logo

Nortrac 40XT - Page 45

Nortrac 40XT
107 pages
Print Icon
To Next Page IconTo Next Page
To Next Page IconTo Next Page
To Previous Page IconTo Previous Page
To Previous Page IconTo Previous Page
Loading...
Operation Description
39
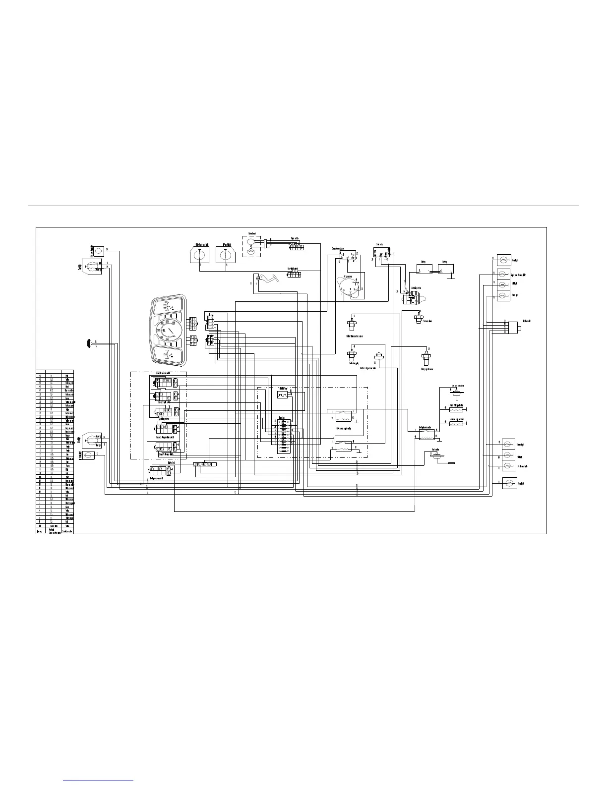
Fig 2-31 Electrical Schematic

Table of Contents

Related product manuals