EasyManua.ls Logo

Nortron 21B20M - Wiring Diagrams - Continued; 83 B13 Model Wiring; 83 B24 Model Wiring; 83 B27 Model Wiring

Default Icon
14 pages
Print Icon
To Next Page IconTo Next Page
To Next Page IconTo Next Page
To Previous Page IconTo Previous Page
To Previous Page IconTo Previous Page
Loading...
-11 -
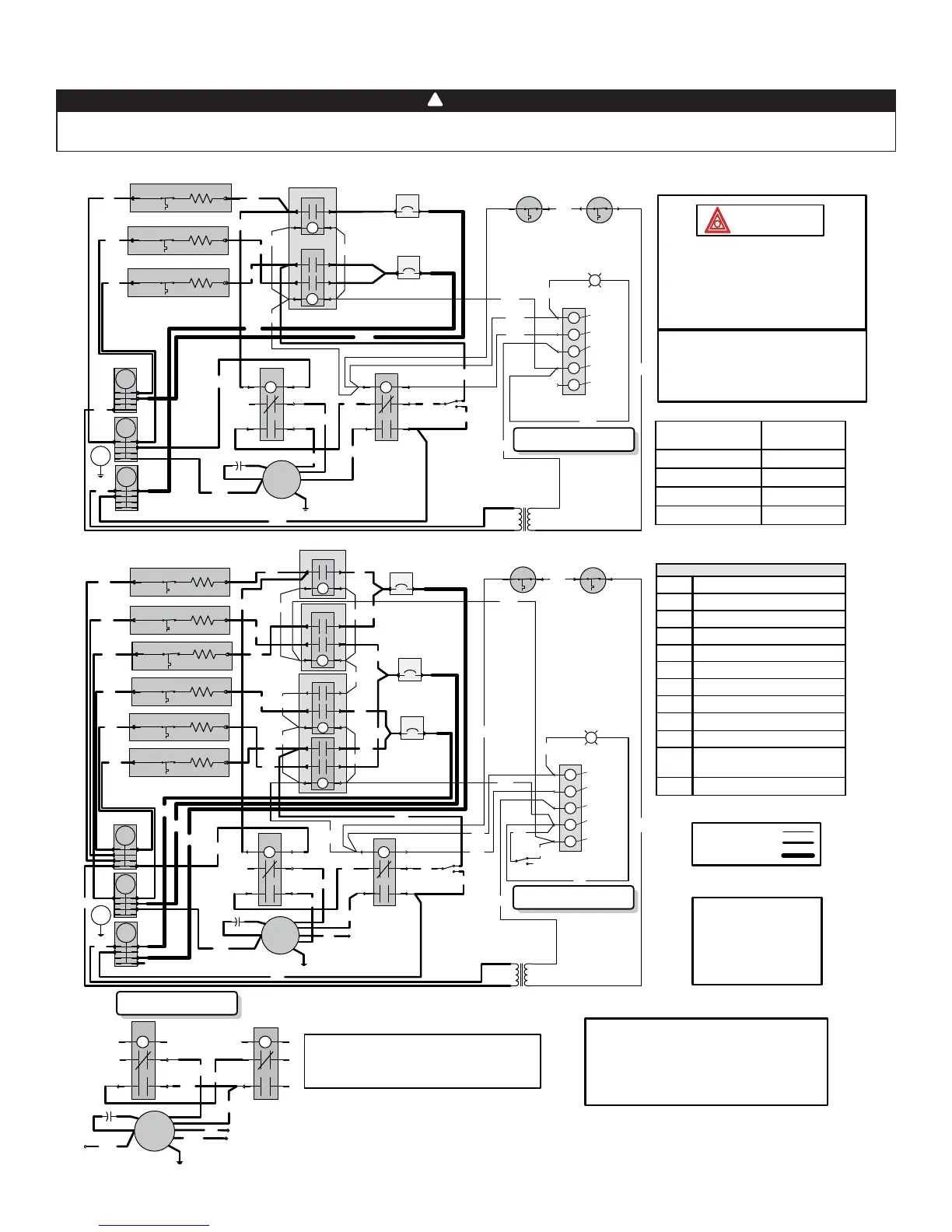
8. WIRING DIAGRAMS (CONTD)
27 KW 208 VAC
3-Phase
24 KW 208 VAC
3-Phase
13.5 KW 208 VAC
3-Phase / Triphasé
K2 240V
1
5
2
3
6
4
240
VAC
NC
R
BL
Y
BL
C
B
W
B
K1 24V
1
5
2
3
6
4
24V
DC
K1 24V
1
5
2
3
6
4
24V
DC
B
Continuous
Ventilation
R
M
Y
BL
C
W
B
R
B
B
M
K2 240V
1
5
2
3
6
4
240
VAC
NC
B
B
R
L1
L3
L2
G
Class 2 Transformer
Pri: 240 V 60 Hz
Sec: 24 V 60 Hz 40 VA
Y
T
Y
Y
B
R
Class 2 Transformer
Pri: 240 V 60 Hz
Sec: 24 V 60 Hz 40 VA
Y
T
Y
Y
B
R
W
Open: 93.3°C
MRTP 1 MRTP 2
BL
W
Open: 93.3°C
MRTP 1 MRTP 2
BL
24 VAC
COMMON OUT
24 VAC
POWER OUT
CALL FOR FAN
CALL FOR
HEAT 1
CALL FOR
HEAT 2
B
HEAT INDICATOR
C
G
R
W1
W2
TB
Y
BLK
24 VAC
COMMON OUT
24 VAC
POWER OUT
CALL FOR FAN
CALL FOR
HEAT 1
CALL FOR
HEAT 2
B
HEAT INDICATOR
C
G
R
W1
W2
TB
Y
B
BL
Season Select
BL
BL
BL
BL
BL
W
B
B
B
B
HEAT 2
E
ARTP
R
HEAT 3
E
ARTP
R
HEAT 1
E
ARTP
R
HEAT 4
E
ARTP
R
HEAT 5
E
ARTP
R
HEAT 6
E
ARTP
R
BL
BL
BL
BL
BL
BL
B
B
B
B
B
B
B
R
R
R
R
R
R
R1
M6 M5
24V
DC
M2 M1
M4 M3
24V
DC
B1
50 A
A2 A1
R2
M2 M1
24V
DC
B3
50 A
B2
50 A
M4 M3
R3
M2 M1
24V
DC
BL
BL
K1 24V
1
5
2
3
6
4
24V
DC
B
Continuous
Ventilation
R
B
BL
C
W
R
B
M
K2 240V
1
5
2
3
6
4
240
VAC
NC
B
B
B
B
R
L1
L3
L2
G
HEAT 2
E
ARTP
R
HEAT 3
E
ARTP
R
HEAT 1
E
ARTP
R
B
B
B
B
BL
BL
B
B
R1
24V
DC
M2 M1
M4 M3
24V
DC
B1
50 A
M6 M5
B2
25 A
BL
1. If any of the original wire, as supplied, must
be replaced, use the same equivalent wire.
Wiring must comply with applicable codes,
ordinances and regulations.
2. Field wiring must comply with applicable
codes, ordinances and regulations. Use only
Class 1 wiring inside furnace compartments.
Critical characteristic
Line voltage wiring:
UL AWM 1015/1230, 600V, 105°C, VW-1, 12 AWG;
CSA TEW 600V, 105°C, FT1, 12 AWG.
Low voltage wiring:
same ratings as high voltage except 18 AWG.
HI
MED-HIGH
MED-LOW
LOW
FAN MOTOR SPEED
BLACK
BLUE
YELLOW
RED
COLOR
LEGEND
C
E
R
K
MRTP
HEAT
L1,
L2, L3
Capacitor
Heating Element
Time Delay Relay
Fan Relay
Auto-Reset Thermal Protector
Manual-Reset Thermal Protector
Line Supply 208 V 3-Phase
WIRING COLOR CODE
B BLACK
BL BLUE
O ORANGE
R RED
W WHITE
Y YELLOW
ARTP
M
TB
T
Fan Motor
Terminal Block
Transformer Class 2
Heat
B Breaker
Low power
High power
High power 8 AWG
FE0048A
For the use of a two-stage thermostat or
an outdoor thermostat, connect between
W1 and W2.
Make sure that the Season Select switch
is set to “Mild” position.
The wiring diagram for 27 KW model
is the same as the one for 24 KW model,
except for the motor (illustrated at left).
!
WARNING
Risk of electric shock. Disconnect power before installation, servicing, maintenance or field wiring. Replace all panels
before operating. Failure to do so can result in electric shock causing severe injuries or death.
83B13 Model
83B24 Model
83B27
Model

Related product manuals